0120-774-046
〒650-0034
神戸市中央区京町72番地 新クレセントビル10F
営業時間:10:00~18:00 定休日:火・水曜日
/ 兵庫の物件詳細情報 /PROPERTY
<完全要予約制>4/25(土)・26(日)13:00~18:00 残2邸!オープンハウス開催
OPEN HOUSE
NEW
完成済
4,480万円(税込)

神戸市須磨区関守町二丁目40番4
(住居表示: 3番17-2号)

JR神戸線須磨駅まで徒歩6分
山陽電鉄本線山陽須磨駅まで徒歩4分
■水回りを集約した効率的な家事動線で、洗濯もお料理もスムーズ。家族と過ごす“ゆとり時間”が生まれます。
■全棟ガス衣類乾燥機「乾太くん」標準装備で、“干さない洗濯”が日常に。
■洗面室の天井には「クリアトーン」を採用。湿気やニオイを抑えて、毎日の支度も気持ちよく。カビ予防にも◎。
■適材適所の収納計画で朝の身支度も片付けも時短。
■全水栓に“ナノバブル水”を採用。保湿・洗浄・時短効果でママの美容と健康をサポート。
■耐震等級3+制震ダンパーで繰り返しの地震にも強い安心設計。
OPEN HOUSE
NEW
完成済
4,480万円(税込)

神戸市須磨区関守町二丁目40番4

JR神戸線須磨駅まで徒歩6分
山陽電鉄本線山陽須磨駅まで徒歩4分
■水回りを集約した効率的な家事動線で、洗濯もお料理もスムーズ。家族と過ごす“ゆとり時間”が生まれます。
■全棟ガス衣類乾燥機「乾太くん」標準装備で、“干さない洗濯”が日常に。
■洗面室の天井には「クリアトーン」を採用。湿気やニオイを抑えて、毎日の支度も気持ちよく。カビ予防にも◎。
■適材適所の収納計画で朝の身支度も片付けも時短。
■全水栓に“ナノバブル水”を採用。保湿・洗浄・時短効果でママの美容と健康をサポート。
■耐震等級3+制震ダンパーで繰り返しの地震にも強い安心設計。
※間取り図・パース・写真中に車や家具を掲載の場合は、配置例を示したもので実際に設置されているわけではありません。特にコメントがない場合は家具や車などは販売価格に含まれません。
WOODTEC天然木複合フローリング。家族のゆとり時間に、木の温もりを。
キッチン側からリビングダイニング全体が見渡せる設計。料理をしながら、宿題をする子どもの様子を見守れます。
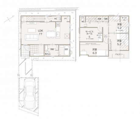
17帖の広々リビングはダイニングテーブルとソファを置いても、お子様が遊ぶスペースを十分に確保。家族が思い思いの時間を過ごしながら、同じ空間にいられる広さです。
夕食後の片付けは食器洗い乾燥機にお任せ。家族でゆっくり過ごす時間を増やすキッチン。手元から足元までがすべてスライド式で収納力抜群のシステムキッチン。3口コンロ・オールインワン浄水栓付きです。
オープンパントリー 食料品や調理家電などキッチン周りのものを収納できるパントリーは、キッチンをすっきり保ち広々と使えます。
サービスルーム5帖 収納完備。居室内オープンクローゼットで、収納場所が一目瞭然。朝のお子様の身支度も慌ただしくなりません。
洋室5.2帖 ご家族それぞれのプライベート空間を確保。
洋室5.2帖 扉で仕切れる、隣室とつながる、使い方広がるフレキシブル空間。
居室内オープンクローゼットで、収納場所が一目瞭然。朝のお子様の身支度も慌ただしくなりません。
雨の日もストレスフリーにお洗濯できる、ガス衣類乾燥機「乾太くん」標準装備。天気や花粉を気にせず洗濯OK。ホスクリーン併設で、乾燥機にかけれないおしゃれ着も干すことができて便利です。
散らかりがちなタオルや小物もすっきり収まる収納と扉付きリネン庫で、洗面まわりはいつもきれい。
増えがちな洗面まわりを、まとめて美しく収納できるリネン庫。
1日の疲れを癒す、ゆとりの浴室。キレイサーモフロアにより冬でも足元が冷たくなりにくく快適。まる洗いカウンターは壁から外して丸ごと洗えるため掃除も簡単。換気乾燥暖房機付きです。
白を基調とした明るいお手洗い。フチレス形状で汚れがたまりにくく、水アカや汚れが付きにくい設計。清掃性や快適性に優れた一体型シャワートイレ(LIXIL)は清潔でクリーンな空間を実現します。(写真は1階のトイレです。)
大容量のシューズクローゼットは家族みんなの靴だけでなく、アウトドア用品、防災グッズなどが収納可能。玄関まわりがすっきり片付き、家事に追われる毎日を快適に整えます。
心地よい光と風が通り抜けるバルコニー。須磨の海を望む開放感の中で、家族のくつろぎ時間やお子さまの遊び場、家庭菜園など多彩に楽しめます。
耐震等級1の1.5倍の強度で、消防署や警察署など防災の拠点となる建物に求められる耐震性能です。ゼロホームは地震に強い家づくりをしています。
高性能グラスウールを採用し、住まいをまるごと断熱化。外気温の影響を抑え、夏も冬もいつも快適な室内空間をつくります。
基準一次エネルギー消費量から20%以上削減(BEI≦0.8)を達成した高い省エネ性能です。
ゼロホームの100年住宅は、高品質を維持するための構造にて施工し、お引渡しの後も手厚いアフターサービス体制でサポートします。
長期にわたって安全かつ快適に居住できる性能を備えていると国が認定した住宅。税制面やローンの金利面でもメリットがあります。
ZEH水準の「断熱等性能等級5」および「一次エネルギー消費量等級6」を同時に満たしています。季節に関わらず、室温の安定を保ち、快適な室内環境を実現します。
スケルトンとインフィルを明確に区別し、構造躯体を傷めることなく、設備・仕上げ材が容易に交換できる工夫を組み込んでいます。
壁内の水分を透湿防水シートから通気層を通して外部に放出させる「外壁通気工法」を採用し、建物の耐久性を高めています。
構造躯体に影響を及ぼさずに、給排水管等の点検補修ができる工夫をさまざまに取り入れ、建てた後の維持管理がしやすい設計になっています。
独自の構造50年保証、安心の地盤保証20年、さらに保存している定期点検やメンテナンスの記録を住宅履歴書としてお渡しすることができます。
ゼロホームは2012年より全ての新築住宅の建築に国産材を使用。
ゼロホームアプリから、お引渡し後のメンテナンス依頼やお困りごとのご相談が可能!また、アフターサービスについては、オーナー様用webサイトをご覧ください。
たっぷり乾かせる大容量の8㎏タイプを採用!
短時間乾燥だから、干す手間も取り込む手間もかかりません。
毎日使っても安心の低コスト。コインランドリーよりもおトク!
気になる衣類の悪臭を、ガスの温風で除去します。
新品のタオルのように、繊維を立ち上げふんわりの仕上がりに。
手元から足元までがすべてスライド式で収納力抜群のシステムキッチン。3口コンロ(無水両面焼きグリル)・食器洗い乾燥機・オールインワン浄水栓付きです。※物件によりカラーや設置イメージが異なる場合があります。
ラクな姿勢で使いやすいスライド式「食器洗い乾燥機」が標準装備。後片付けの時間が短縮でき、シンクまわりもすっきり片付きます。
機能性に優れた三面鏡(長寿命・省電力のスリムLED付)と、豊富な収納キャビネットがついたスタイリッシュな洗面化粧台です。※物件によりカラーや設置イメージが異なる場合があります。
洗面化粧台下部は、奥のものまで取り出しやすい引き出し式です。
落ちにくい汚物汚れも、水を流すだけツルンっと落とせる新素材”アクアセラミック”で毎日のお手入れ簡単!※物件によりカラーや設置イメージが異なる場合があります。
毎日のお手入れがしやすい工夫と心地よい使用感を兼ね備えた、シンプルデザインのシステムバス。※物件によりカラーや設置イメージが異なる場合があります。
手元から足元までがすべてスライド式で収納力抜群のシステムキッチン。3口コンロ(無水両面焼きグリル)・食器洗い乾燥機・オールインワン浄水栓付きです。※物件によりカラーや設置イメージが異なる場合があります。
ラクな姿勢で使いやすいスライド式「食器洗い乾燥機」が標準装備。後片付けの時間が短縮でき、シンクまわりもすっきり片付きます。
機能性に優れた三面鏡(長寿命・省電力のスリムLED付)と、豊富な収納キャビネットがついたスタイリッシュな洗面化粧台です。※物件によりカラーや設置イメージが異なる場合があります。
洗面化粧台下部は、奥のものまで取り出しやすい引き出し式です。
落ちにくい汚物汚れも、水を流すだけツルンっと落とせる新素材”アクアセラミック”で毎日のお手入れ簡単!※物件によりカラーや設置イメージが異なる場合があります。
毎日のお手入れがしやすい工夫と心地よい使用感を兼ね備えた、シンプルデザインのシステムバス。※物件によりカラーや設置イメージが異なる場合があります。
| 取引形態 | 売主 | 販売戸数/総戸数 | 1戸/1戸 |
|---|---|---|---|
| 敷地面積 | 公簿110.49㎡ | 建物面積 | 92.88㎡ |
| 間取り | 3LDK+S | 駐車場 | 有 |
| 建物構造 | 木造スレートぶき 地上2階 | 築年月 | 2025年12月 |
| 接道状況 | 南東 幅員 4.00m 公道に3.20m接面 | ||
| 私道負担 | 含む約1.30㎡ | ||
| 地目 | 宅地 | 用途地域 | 第1種低層住居専用地域 |
| 建ぺい率 | 60% | 容積率 | 150% |
| 他の法令上の制限 | 準防火地域 第1種高度地区 | 設備 | 飲用水:水道(公営) ガス:都市ガス 汚水:公共下水 |
| 引渡 | 即時 | 現況 | 完成済 |
| 建築確認番号 | 確認サービス第KS125-6120-50474号 | Mapコード | 31238051*05 |
| 学区 | 西須磨小学校、鷹取中学校 | ||
| 備考 | 表題登記関連費 110,000円(税込)、長期優良住宅関連費用110,000円(税込)別途要 造付バルコニー面積:3.85㎡ 納戸申請有 セットバック面積 約1.30㎡ |
||
情報提供日:2026/04/23(毎日情報更新)
取引条件の有効期限:2026/05/23
簡単ローンシミュレーション
ご検討中の「借入金額」「借入期間」「金利」で自由にシミュレーションできます!
借入金額 万円 借入期間 年 金利 % 毎月のお支払い額 円
※住宅ローン金利については各種金融機関のサイトなどでご確認ください。
※ボーナス払いなしの計算となります。また、お客様のご条件により金利の優遇幅が変動する場合があります。詳細はお気軽にご相談ください。
簡単ローンシミュレーション
ご検討中の「借入金額」「借入期間」「金利」で自由に
シミュレーションできます!
借入金額 万円
借入期間 年 金利 %
毎月のお支払い額 円
※住宅ローン金利については各種金融機関のサイトなどでご確認ください。
※ボーナス払いなしの計算となります。また、お客様のご条件により金利の優遇幅が変動する場合があります。詳細はお気軽にご相談ください。