0120-848-046
〒530-0003
大阪市北区堂島2丁目3番5号 JPR堂島ウエスト4F
営業時間:10:00~18:00 定休日:火・水曜日
/ 大阪の物件詳細情報 /PROPERTY
完成済
年度内入居可
プレゼント対象
4,080万円(税込)

高槻市大冠町三丁目28番84
(住居表示: 11-18の一部)

高槻市バス東和町バス停まで徒歩3分
~家族それぞれに、自分だけの時間と空間を~
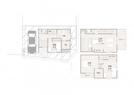
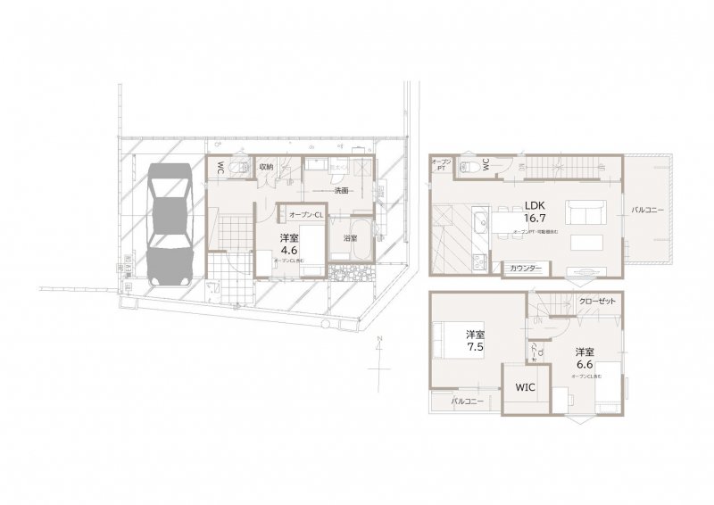
■LDKは広々16.7帖♪バルコニーも直通なので開放感や利便性◎
■対面式キッチン、トイレ2箇所で来客時も安心
■全室収納付き、廊下収納もあります!
■水回りはすべてナノバブル!髪にもお肌にも優しいお家!
まずはお気軽に資料請求からどうぞ♪
※間取り図・パース・写真中に車や家具を掲載の場合は、配置例を示したもので実際に設置されているわけではありません。特にコメントがない場合は家具や車などは販売価格に含まれません。
家族が自然に集まり、くつろげるリビングが魅力
木の温もりを感じる開放的な空間。
料理をしながらでもご家族との会話を楽しめる対面キッチン。
窓から光が差し込み、風通しも良くなるため、明るく開放的な空間になります。
開放感たっぷりのリビングは勉強や仕事もはかどります♪
用頻度や家族のライフスタイルに合わせて活用いただけるLDK収納
リラックスできる広々としたバスルーム。
洗面スペースには乾太くんとホスクリーンを設置しておりますので洗濯時間の短縮も可能に♪
トイレは2カ所あるので、来客時も安心!
廊下部分には収納スペースがあります!
鏡があるので靴を履いた状態での全身チェックができます。!
2階バルコニーから見た景色。
家じゅう“潤いナノバブル水”で暮らしを豊かに。水中の細かな気泡で肌や髪を潤し、料理、お風呂、洗濯、掃除など、家庭内で水を使用するあらゆるシーンで役立ちます。
<Beauty Aqua4つの特徴> ①保温 ②保湿 ③洗浄 ④時短 ”潤いナノバブル水”で豊かな暮らしを始めませんか?
【保湿・保温】お風呂・シャワーでスッキリ奇麗に 【洗浄】洗濯物がサッパリと洗い上がる 【時短】清潔な水回りで、家事ストレスが軽減
手元から足元までがすべてスライド式で収納力抜群のシステムキッチン。3口コンロ(無水両面焼きグリル)・食器洗い乾燥機・オールインワン浄水栓付きです。※物件によりカラーや設置イメージが異なる場合があります。
ラクな姿勢で使いやすいスライド式「食器洗い乾燥機」が標準装備。後片付けの時間が短縮でき、シンクまわりもすっきり片付きます。
機能性に優れた三面鏡(長寿命・省電力のスリムLED付)と、豊富な収納キャビネットがついたスタイリッシュな洗面化粧台です。※物件によりカラーや設置イメージが異なる場合があります。
洗面化粧台下部は、奥のものまで取り出しやすい引き出し式です。
落ちにくい汚物汚れも、水を流すだけツルンっと落とせる新素材”アクアセラミック”で毎日のお手入れ簡単!※物件によりカラーや設置イメージが異なる場合があります。
毎日のお手入れがしやすい工夫と心地よい使用感を兼ね備えた、シンプルデザインのシステムバス。※物件によりカラーや設置イメージが異なる場合があります。
| 取引形態 | 売主 | 販売戸数/総戸数 | 1戸/1戸 |
|---|---|---|---|
| 敷地面積 | 公簿68.78㎡ | 建物面積 | 約91.49㎡ |
| 間取り | 3LDK | 駐車場 | 有 |
| 建物構造 | 木造ガルバリウム鋼板ぶき 地上3階 | 築年月 | 2025年11月 |
| 接道状況 |
東 幅員 約4.13m 公道に約7.58m接面 南 幅員 約4.11m 公道に約9.15m接面 |
||
| 私道負担 | - | ||
| 地目 | 宅地 | 用途地域 | 第1種中高層住居専用地域 |
| 建ぺい率 | 60% | 容積率 | 200% |
| 他の法令上の制限 | 準防火地域 10m第2種高度地区 | 設備 | 飲用水:水道(公営) ガス:都市ガス 汚水:公共下水 雑排水:公共下水 雨水:側溝等 |
| 引渡 | 即時 | 現況 | 完成済 |
| 建築確認番号 | 確認サービス第KS125-6120-50816号 | Mapコード | 11871465*87 |
| 学区 | 冠小学校、冠中学校 | ||
| 備考 | ・表題登記関連費用:110,000円(税込)別途要 ・住宅省エネルギー性能証明書申請費用:110,000円(税込)別途要 ・造付バルコニー面積:2階約7.45㎡/3階約2.48㎡ ・居住誘導区域 ・ZEH Oriented ・南側道路:建築基準法上の道路に該当せず |
||
情報提供日:2026/01/27(毎日情報更新)
取引条件の有効期限:2026/02/26
簡単ローンシミュレーション
ご検討中の「借入金額」「借入期間」「金利」で自由にシミュレーションできます!
借入金額 万円 借入期間 年 金利 % 毎月のお支払い額 円
※住宅ローン金利については各種金融機関のサイトなどでご確認ください。
※ボーナス払いなしの計算となります。また、お客様のご条件により金利の優遇幅が変動する場合があります。詳細はお気軽にご相談ください。
簡単ローンシミュレーション
ご検討中の「借入金額」「借入期間」「金利」で自由に
シミュレーションできます!
借入金額 万円
借入期間 年 金利 %
毎月のお支払い額 円
※住宅ローン金利については各種金融機関のサイトなどでご確認ください。
※ボーナス払いなしの計算となります。また、お客様のご条件により金利の優遇幅が変動する場合があります。詳細はお気軽にご相談ください。