0120-848-046
〒530-0003
大阪市北区堂島2丁目3番5号 JPR堂島ウエスト4F
営業時間:10:00~18:00 定休日:火・水曜日
/ 大阪の物件詳細情報 /PROPERTY
3,880万円(税込)

摂津市鳥飼本町五丁目1176番
(住居表示: 鳥飼本町5丁目8番19-2号)

大阪モノレール線南摂津駅まで徒歩21分
阪急バス鳥飼八防バス停まで徒歩4分
■家じゅう全部「潤いナノバブル水」で、あなたもお家もキレイに!
■ガス衣類乾燥機 乾太くん8kgタイプを採用!
家事の負担を軽減してくれる、お洗濯ものをスピード乾燥!
■空間をワンランク上へーDAIKEN【トリニティー】採用※一部床材
四周まで美しく仕上げた木目が空間に深みをプラス
無垢のような質感と優しい足触りで、毎日をここちよく。
■「洗う→干す→しまう」を最適化 ホスクリーン!
ホスクリーン上には調臭、防臭に優れたクリアトーン採用
湿気やニオイがこもりにくく、ストレスフリー。カビ予防にも◎
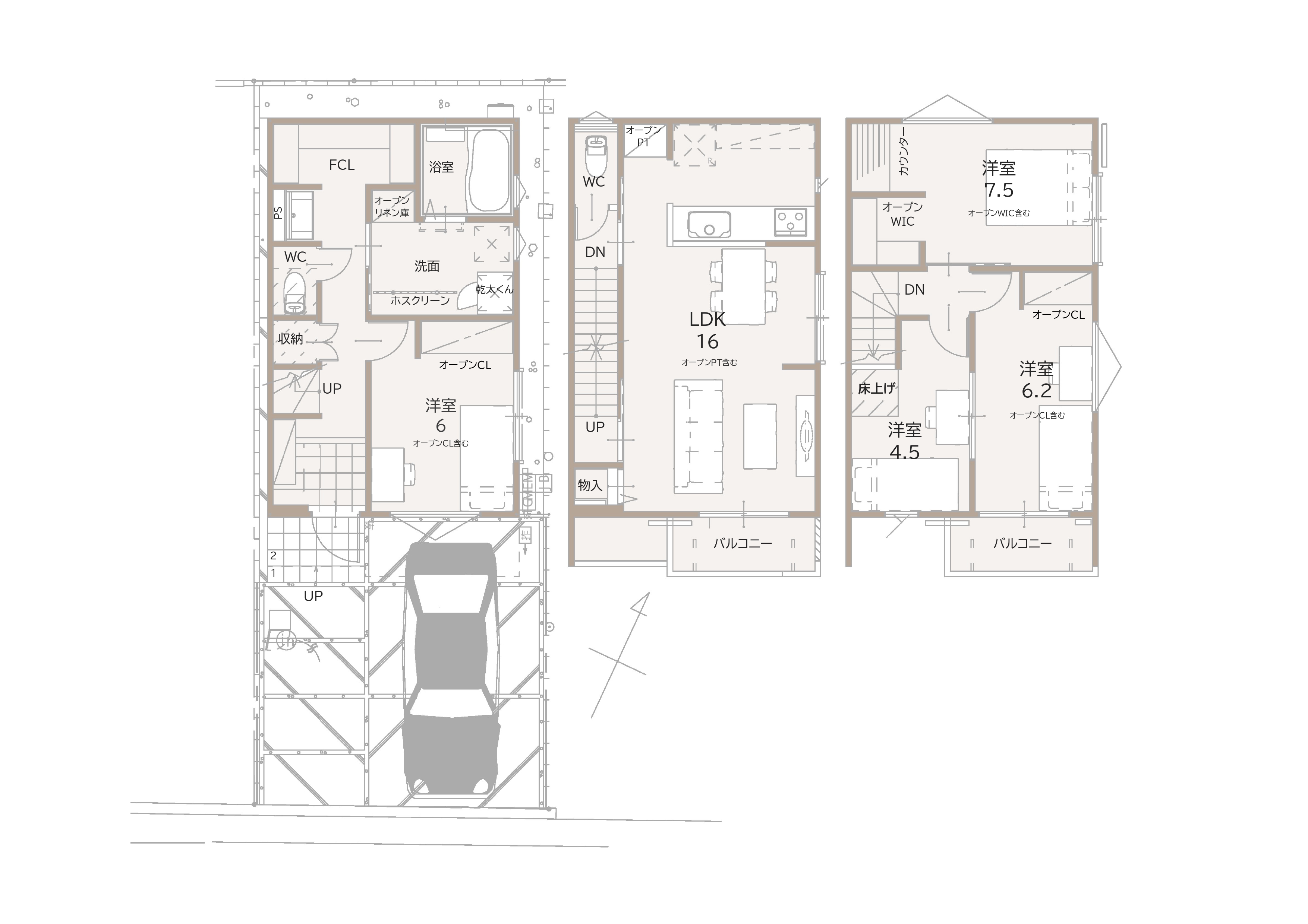
全居室収納スペースがございます!一階フロアにはファミリークローゼットを完備♪
家事導線を考えられた「カジラク」の間取りです。
南向きバルコニーでLDKの通風・採光ともに良好。一部居室はカウンター付きで仕事、勉強部屋にも。
3,880万円(税込)

摂津市鳥飼本町五丁目1176番

大阪モノレール線南摂津駅まで徒歩21分
阪急バス鳥飼八防バス停まで徒歩4分
■家じゅう全部「潤いナノバブル水」で、あなたもお家もキレイに!
■ガス衣類乾燥機 乾太くん8kgタイプを採用!
家事の負担を軽減してくれる、お洗濯ものをスピード乾燥!
■空間をワンランク上へーDAIKEN【トリニティー】採用※一部床材
四周まで美しく仕上げた木目が空間に深みをプラス
無垢のような質感と優しい足触りで、毎日をここちよく。
■「洗う→干す→しまう」を最適化 ホスクリーン!
ホスクリーン上には調臭、防臭に優れたクリアトーン採用
湿気やニオイがこもりにくく、ストレスフリー。カビ予防にも◎
全居室収納スペースがございます!一階フロアにはファミリークローゼットを完備♪
家事導線を考えられた「カジラク」の間取りです。
南向きバルコニーでLDKの通風・採光ともに良好。一部居室はカウンター付きで仕事、勉強部屋にも。
※間取り図・パース・写真中に車や家具を掲載の場合は、配置例を示したもので実際に設置されているわけではありません。特にコメントがない場合は家具や車などは販売価格に含まれません。
LDKの床材は優れた耐久性、美しい木目柄が特徴の「トリニティー」を採用。空間の質を、一段引き上げ住まいに洗練された印象とぬくもりをもたらします。
木の温もりを感じる開放的な空間。家族が自然に集まり、くつろげるリビングが魅力です。
大切なご家族が集まる場所。陽当たりの良いリビングでゆったりと過ごしませんか?
料理をしながらでもご家族との会話を楽しめる対面キッチン。調理中もお子様に目が届いて安心です。
お料理中もご家族との会話が弾む対面式キッチン。家事をしていても家族の様子が伺え安心感があります。
ハイドアを採用し、開放感あふれる上質なリビング空間を演出。さらにリビング収納を備え、日用品や小物をすっきりと整理できる機能的な設計です。美しさと使いやすさを兼ね備えた、ワンランク上の居住空間。
暮らしやすさを考え抜いた、機能的な6帖空間。1階に配置されたこのお部屋は、洗面・浴室に隣接しており、朝の身支度や入浴後の動線もスムーズ。 毎日の生活を快適にサポートします。
ゆとりある広さが魅力の7.5帖の居室。アクセントクロスが空間にほどよい個性と奥行きを与え、シンプルながらも印象的な仕上がりです。2面に設けられた窓からはやわらかな自然光が差し込み、明るく風通しの良い快適な空間を実現。
7.5帖のお部屋には便利なカウンターを設置。 ワークスペースや趣味の時間など、自分だけの居場所として活躍します。
4.5帖のスペースに隣接し、用途に応じてゆるやかにつながる使い勝手の良い間取りです。 コンパクトながらも動線がシンプルで、暮らしに無駄のない快適さをもたらします。
6.2帖のドアを開けると、隣には4.5帖のスペースが広がる一体感のある間取り。 用途に合わせて使い分けができ、暮らしの幅がぐっと広がります。
空間に変化をもたらす、床上げ仕様の4.5帖スペース。一段上がったフロアが、日常にさりげない特別感を演出。 視覚的なメリハリが生まれ、お部屋全体に広がりと奥行きを感じさせます。
洗面台とファミリークローゼット(FCL)が一体となった、効率的で機能的なスペース。朝の身支度から着替え、片付けまでをワンエリアで完結できるスムーズな動線設計が魅力です。
洗面スペースにはガス衣類乾燥機「乾太くん」を設置し、天候に左右されずスピーディーな乾燥を実現。 洗濯から乾燥までの家事時間を大幅に短縮できます。 さらに「ホスクリーン」を備え、ちょっとした室内干しや一時掛けにも便利。 ライフスタイルに合わせて柔軟に使える、実用性の高い空間です。
すっきりと整う、使い勝手の良いランドリースペース。 日用品やタオル類をしっかり収められる収納スペースを浴室隣に備え、生活感を抑えた美しい空間をキープできます。
大人の方でも足を伸ばして寛げる広さの浴室。1日の疲れも足を延ばしてリラックスしましょう♪
すっきりと整う、機能的な玄関空間。玄関まわりを美しく保ち、来客時にも気持ちよく迎えられるすっきりとした印象に。収納力と利便性を兼ね備えた、快適な玄関スペースです。
LDKから直接出入りできる、開放感あふれるバルコニー。室内と屋外が自然につながる設計で、光と風を身近に感じられる心地よい空間です。洗濯物干しはもちろん、ちょっとしたリラックスタイムやグリーンを楽しむスペースとしても活躍。
南摂津駅まで1500m 徒歩21分
阪急バス鳥飼八防バス停まで270m 徒歩4分
阪急バス鳥飼八防バス停時刻表
鳥飼北小学校まで220m 徒歩3分
第二中学校まで500m 徒歩7分
認定こども園鳥飼さつき園まで74m 徒歩1分
摂津ひかり病院まで500m 徒歩7分
摂津ひかり幼稚園まで700m 徒歩10分
北おおさか信用金庫鳥飼支店まで350m 徒歩4分
さくら公園まで210m 徒歩3分
ラムー摂津店まで1000m 徒歩14分
業務スーパー鳥飼店まで500m 徒歩6分
ルッツ南摂津まで1400m 徒歩19分
ドラッグストアコスモス鳥飼西支店まで350m 徒歩5分
セブンイレブン摂津鳥飼本町5丁目店まで280m 徒歩4分
ジャパン摂津店まで400m 徒歩6分
たっぷり乾かせる大容量の8㎏タイプを採用!
短時間乾燥だから、干す手間も取り込む手間もかかりません。
毎日使っても安心の低コスト。コインランドリーよりもおトク!
気になる衣類の悪臭を、ガスの温風で除去します。
新品のタオルのように、繊維を立ち上げふんわりの仕上がりに。
家じゅう“潤いナノバブル水”で暮らしを豊かに。水中の細かな気泡で肌や髪を潤し、料理、お風呂、洗濯、掃除など、家庭内で水を使用するあらゆるシーンで役立ちます。
<Beauty Aqua4つの特徴> ①保温 ②保湿 ③洗浄 ④時短 ”潤いナノバブル水”で豊かな暮らしを始めませんか?
【保湿・保温】お風呂・シャワーでスッキリ奇麗に 【洗浄】洗濯物がサッパリと洗い上がる 【時短】清潔な水回りで、家事ストレスが軽減
手元から足元までがすべてスライド式で収納力抜群のシステムキッチン。3口コンロ(無水両面焼きグリル)・食器洗い乾燥機・オールインワン浄水栓付きです。※物件によりカラーや設置イメージが異なる場合があります。
ラクな姿勢で使いやすいスライド式「食器洗い乾燥機」が標準装備。後片付けの時間が短縮でき、シンクまわりもすっきり片付きます。
機能性に優れた三面鏡(長寿命・省電力のスリムLED付)と、豊富な収納キャビネットがついたスタイリッシュな洗面化粧台です。※物件によりカラーや設置イメージが異なる場合があります。
洗面化粧台下部は、奥のものまで取り出しやすい引き出し式です。
落ちにくい汚物汚れも、水を流すだけツルンっと落とせる新素材”アクアセラミック”で毎日のお手入れ簡単!※物件によりカラーや設置イメージが異なる場合があります。
毎日のお手入れがしやすい工夫と心地よい使用感を兼ね備えた、シンプルデザインのシステムバス。※物件によりカラーや設置イメージが異なる場合があります。
| 取引形態 | 売主 | 販売戸数/総戸数 | 1戸/1戸 |
|---|---|---|---|
| 敷地面積 | 公簿73.09㎡ | 建物面積 | 約99.36㎡ |
| 間取り | 4LDK | 駐車場 | 有 |
| 建物構造 | 木造ガルバリウム鋼板ぶき 地上3階 | 築年月 | 2026年4月 |
| 接道状況 | 南 幅員 約9.00m 公道に約5.44m接面 | ||
| 私道負担 | - | ||
| 地目 | 宅地 | 用途地域 | 準工業地域 |
| 建ぺい率 | 70% | 容積率 | 200% |
| 他の法令上の制限 | 準防火地域 | 設備 | 飲用水:水道(公営) ガス:都市ガス 汚水:公共下水 雑排水:公共下水 雨水:公共下水 |
| 引渡 | 即時 | 現況 | 完成済 |
| 建築確認番号 | 確認サービス第KS125-6120-53726号 | Mapコード | 1684497*01 |
| 学区 | 鳥飼北小学校、第二中学校 | ||
| 備考 | ・表題登記関連費用:110,000円(税込)別途要 ・設計住宅性能評価申請費用:110,000円(税込)別途要 ・造付バルコニー面積2階:約3㎡・造付バルコニー面積3階:約3㎡ |
||
情報提供日:2026/05/02(毎日情報更新)
取引条件の有効期限:2026/06/01
簡単ローンシミュレーション
ご検討中の「借入金額」「借入期間」「金利」で自由にシミュレーションできます!
借入金額 万円 借入期間 年 金利 % 毎月のお支払い額 円
※住宅ローン金利については各種金融機関のサイトなどでご確認ください。
※ボーナス払いなしの計算となります。また、お客様のご条件により金利の優遇幅が変動する場合があります。詳細はお気軽にご相談ください。
簡単ローンシミュレーション
ご検討中の「借入金額」「借入期間」「金利」で自由に
シミュレーションできます!
借入金額 万円
借入期間 年 金利 %
毎月のお支払い額 円
※住宅ローン金利については各種金融機関のサイトなどでご確認ください。
※ボーナス払いなしの計算となります。また、お客様のご条件により金利の優遇幅が変動する場合があります。詳細はお気軽にご相談ください。