0120-848-046
〒530-0003
大阪市北区堂島2丁目3番5号 JPR堂島ウエスト4F
営業時間:10:00~18:00 定休日:火・水曜日
/ 滋賀県の物件詳細情報 /PROPERTY
NEW
2,580万円(非課税)

大津市膳所二丁目字木ノ下566番12
(住居表示: 膳所2丁目4番21)

JR東海道線膳所駅まで徒歩10分
京阪石山坂本線錦駅まで徒歩4分
「JR膳所駅」徒歩10分、「京阪錦駅」徒歩4分の2WAYアクセスが魅力。
通勤、通学に便利で毎日の暮らしが快適に。
土地は平坦地×条件付きで、京阪グループゼロホームによる自由度の高いプランニングが可能。ライフスタイルに合わせた住まいづくりをサポートします。
周辺には買い物施設や生活便利施設が点在し、落ち着いた環境と利便性を両立。
琵琶湖方面へのアクセスも良く、自然と都市のバランスが取れた立地です。
NEW
2,580万円(非課税)

大津市膳所二丁目字木ノ下566番12

JR東海道線膳所駅まで徒歩10分
京阪石山坂本線錦駅まで徒歩4分
「JR膳所駅」徒歩10分、「京阪錦駅」徒歩4分の2WAYアクセスが魅力。
通勤、通学に便利で毎日の暮らしが快適に。
土地は平坦地×条件付きで、京阪グループゼロホームによる自由度の高いプランニングが可能。ライフスタイルに合わせた住まいづくりをサポートします。
周辺には買い物施設や生活便利施設が点在し、落ち着いた環境と利便性を両立。
琵琶湖方面へのアクセスも良く、自然と都市のバランスが取れた立地です。
※間取り図・パース・写真中に車や家具を掲載の場合は、配置例を示したもので実際に設置されているわけではありません。特にコメントがない場合は家具や車などは販売価格に含まれません。
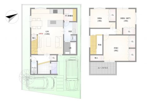
ゼロホームで建てる場合の間取り図 建物面積約103.51㎡ 建物価格2498万円(税込)※このプランは【ゼロホームで建てる場合】の参考プランです。間取りなどはお客様が自由に選択できます。※プラン中の外構・植栽・家具・車・小物などは参考価格に含まれません。
ゼロホームで建てる場合の間取り図 建物面積約103.51㎡ 建物価格2498万円(税込) ※このプランは【ゼロホームで建てる場合】の参考プランです。間取りなどはお客様が自由に選択できます。※プラン中の外構・植栽・家具・車・小物などは参考価格に含まれません。
ゼロホームで建てる場合の外観予想図 画像右:3号地 建物面積約103.51㎡ 建物価格2498万円(税込) ※なお、上下水道工事・造成工事(土留め)・高基礎・地盤改良工事・外構工事・ポーチ前階段は含まれておりません。
※このプランは参考です。間取りなどはお客様が自由に選択できます。
※地盤改良費・外構工事費・水道工事費は価格には含まれません。
※プラン中の外構・植栽・家具・車・小物などは参考価格に含まれません。
| 建物価格(税込) | 2,498万円 | ||
|---|---|---|---|
| 建物面積 | 103.51㎡ | ||
| 取引形態 | 売主 | 販売区画数/総区画数 | 2区画/4区画 |
|---|---|---|---|
| 土地面積 | 公簿101.14㎡ | ||
| 接道状況 | 東 幅員 約4.00m 公道に約8.20m接面 | ||
| 私道負担 | - | ||
| 地目 | 宅地 | 用途地域 | 第1種住居地域 |
| 建ぺい率 | 60% | 容積率 | 200% |
| 他の法令上の制限 | 第3種高度地区 | 設備 | 飲用水:水道(公営) ガス:都市ガス 汚水:公共下水 雑排水:公共下水 雨水:公共下水 |
| 建築条件 | 有 | ||
| 建築条件付宅地とは | 建築条件付き土地とは、その土地に建築する建物の建築請負契約が、一定期間内(概ね3ヶ月程度)に成立することを条件として売買される土地のことをいいます。建物の設計プランは、土地購入者の自由意思により決定可能で、土地売買契約後、建築請負会社と購入した土地に建設する建物について協議することになります。 期間内に納得のいくプランが出来ず、建築請負契約が成立しなければ土地売買契約は白紙となり、支払済みの金銭は全て返却されます。 | ||
| 引渡 | 相談 | 現況 | 更地 |
| Mapコード | 148571236*68 | ||
| 学区 | 膳所小学校、粟津中学校 | ||
| 備考 | ・大津市湖南都市計画区域 |
||
情報提供日:2026/03/26(毎日情報更新)
取引条件の有効期限:2026/04/25
簡単ローンシミュレーション
ご検討中の「借入金額」「借入期間」「金利」で自由にシミュレーションできます!
借入金額 万円 借入期間 年 金利 % 毎月のお支払い額 円
※住宅ローン金利については各種金融機関のサイトなどでご確認ください。
※ボーナス払いなしの計算となります。また、お客様のご条件により金利の優遇幅が変動する場合があります。詳細はお気軽にご相談ください。
簡単ローンシミュレーション
ご検討中の「借入金額」「借入期間」「金利」で自由に
シミュレーションできます!
借入金額 万円
借入期間 年 金利 %
毎月のお支払い額 円
※住宅ローン金利については各種金融機関のサイトなどでご確認ください。
※ボーナス払いなしの計算となります。また、お客様のご条件により金利の優遇幅が変動する場合があります。詳細はお気軽にご相談ください。