SEARCH
京都市北区の一戸建てを
紫野小学校区から探す
京都市北区の紫野小学校区から一戸建ての物件をスピード検索!
お子様の成長を見据えた安心の住環境を見つけるお手伝いをします。
京都市立紫野小学校は、京都市北区紫野下築山町21にある公立小学校です。周辺には神社や寺院が多く見られます。紫野小学校区のゼロホームが販売中の新築建売住宅や、周辺環境などをご紹介します。
紫野小学校区の物件一覧
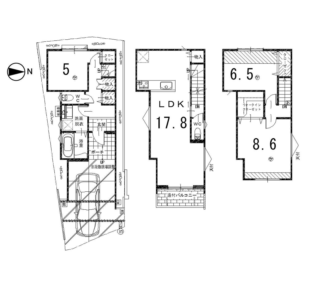
中古一戸建
2LDK+S
3,880万円(非課税)

京都市北区紫野東舟岡町7番6

市バス建勲神社前バス停まで徒歩3分
土地面積:公簿66.25㎡ / 建物面積:93.78㎡

京都市北区紫野東舟岡町7番6

市バス建勲神社前バス停まで徒歩3分
土地面積:公簿66.25㎡ / 建物面積:93.78㎡
紫野小学校区の周辺情報
-
京都の街並みを見渡せ、五山送り火の観賞地としても知られている「建勲神社」があります。 -
1315年に創立され、20を超える塔頭が立ち並んでいる「大徳寺」。歴史的価値の高い国宝や寺宝が多く残されています。



写真をもっとみる