0120-031-046
〒615-0016
京都市右京区西院西淳和院町52-11
営業時間:10:00~18:00 定休日:火・水曜日
/ 京都の物件詳細情報 /PROPERTY
NEW
1,650万円(非課税)

宇治市木幡正中23番4

JR奈良線六地蔵駅まで徒歩6分
地下鉄東西線六地蔵駅まで徒歩7分
京阪バス御蔵山参道バス停まで徒歩4分
【建築条件なし|自由設計可】
◎JR「六地蔵駅」 徒歩6分/地下鉄東西線「六地蔵駅」 徒歩7分
◎間口約7.3mのゆとりある敷地
◎小学校・保育園・公園が徒歩5分圏内
◎買い物・医療施設が揃う暮らしやすい環境
※間取り図・パース・写真中に車や家具を掲載の場合は、配置例を示したもので実際に設置されているわけではありません。特にコメントがない場合は家具や車などは販売価格に含まれません。
※このプランは参考です。間取りなどはお客様が自由に選択できます。
※地盤改良費・外構工事費・水道工事費は価格には含まれません。
※プラン中の外構・植栽・家具・車・小物などは参考価格に含まれません。
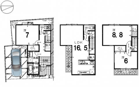
| 建物価格(税込) | 2425万円 | ||
|---|---|---|---|
| 建物面積 | 96.04㎡(29.05坪) | ||
| 取引形態 | 専任媒介 | 販売区画数/総区画数 | 1区画 |
|---|---|---|---|
| 土地面積 | 公簿65.78㎡ | ||
| 接道状況 | 東 幅員 約3.10m 私道に約7.30m接面 | ||
| 私道負担 | - | ||
| 地目 | 宅地 | 用途地域 | 第1種住居地域 |
| 建ぺい率 | 60% | 容積率 | 200% |
| 他の法令上の制限 | 準防火地域 第3種高度地区 | 設備 | 飲用水:水道(公営) ガス:都市ガス 汚水:公共下水 雑排水:公共下水 |
| 引渡 | 即時 | 現況 | 更地 |
| Mapコード | 7 351 214*77 | ||
| 学区 | 木幡小学校、木幡中学校 | ||
| 備考 | 建物建築時 セットバック約3.19㎡有 告知事項有:以前の建物が火災 |
||
情報提供日:2026/01/28(毎日情報更新)
取引条件の有効期限:2026/02/27
簡単ローンシミュレーション
ご検討中の「借入金額」「借入期間」「金利」で自由にシミュレーションできます!
借入金額 万円 借入期間 年 金利 % 毎月のお支払い額 円
※住宅ローン金利については各種金融機関のサイトなどでご確認ください。
※ボーナス払いなしの計算となります。また、お客様のご条件により金利の優遇幅が変動する場合があります。詳細はお気軽にご相談ください。
簡単ローンシミュレーション
ご検討中の「借入金額」「借入期間」「金利」で自由に
シミュレーションできます!
借入金額 万円
借入期間 年 金利 %
毎月のお支払い額 円
※住宅ローン金利については各種金融機関のサイトなどでご確認ください。
※ボーナス払いなしの計算となります。また、お客様のご条件により金利の優遇幅が変動する場合があります。詳細はお気軽にご相談ください。