0120-046-303
〒612-8449
京都市伏見区竹田西小屋ノ内町50
営業時間:10:00~18:00 定休日:火・水曜日
/ 京都の物件詳細情報 /PROPERTY
NEW
6,580万円(非課税)

京都市中京区壬生高樋町65番9

阪急京都線西院駅まで徒歩9分
阪急京都線大宮駅まで徒歩11分
市バス四条中新道バス停まで徒歩3分
◇100年住宅のゼロホームで注文住宅を建てよう!◇
\お客様のご希望やライフスタイルに合わせたプランをご提案いたします/
【壬生高樋町IIIのおすすめポイント】
・阪急「西院」駅まで徒歩9分!大阪方面への通勤通学も便利です。
・周辺には、お買い物施設や飲食店も充実しています!
・近くには「壬生児童公園」もあり、小さいお子様や親御様には嬉しいポイント(^^)/
・角地で開放感がある44坪の注文住宅用地です。
※ゼロホーム各展示場にて、お打ち合わせや仕様案内もさせていただきます!
お気軽にお問い合わせください。
NEW
6,580万円(非課税)

京都市中京区壬生高樋町65番9

阪急京都線西院駅まで徒歩9分
阪急京都線大宮駅まで徒歩11分
市バス四条中新道バス停まで徒歩3分
◇100年住宅のゼロホームで注文住宅を建てよう!◇
\お客様のご希望やライフスタイルに合わせたプランをご提案いたします/
【壬生高樋町IIIのおすすめポイント】
・阪急「西院」駅まで徒歩9分!大阪方面への通勤通学も便利です。
・周辺には、お買い物施設や飲食店も充実しています!
・近くには「壬生児童公園」もあり、小さいお子様や親御様には嬉しいポイント(^^)/
・角地で開放感がある44坪の注文住宅用地です。
※ゼロホーム各展示場にて、お打ち合わせや仕様案内もさせていただきます!
お気軽にお問い合わせください。
※間取り図・パース・写真中に車や家具を掲載の場合は、配置例を示したもので実際に設置されているわけではありません。特にコメントがない場合は家具や車などは販売価格に含まれません。
※このプランは参考です。間取りなどはお客様が自由に選択できます。
※地盤改良費・外構工事費・水道工事費は価格には含まれません。
※プラン中の外構・植栽・家具・車・小物などは参考価格に含まれません。
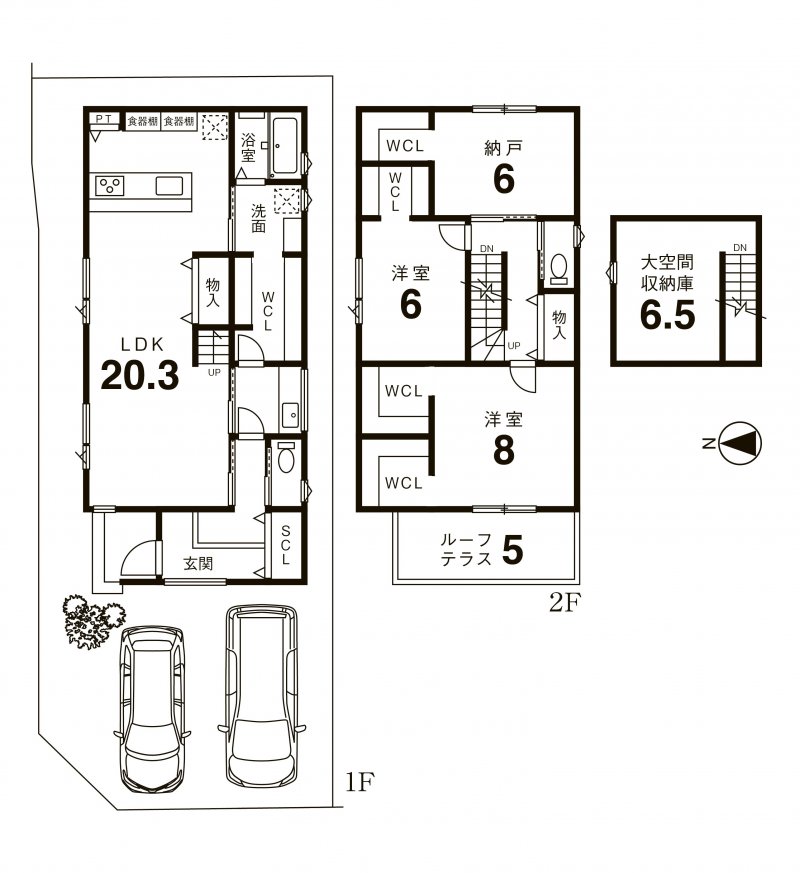
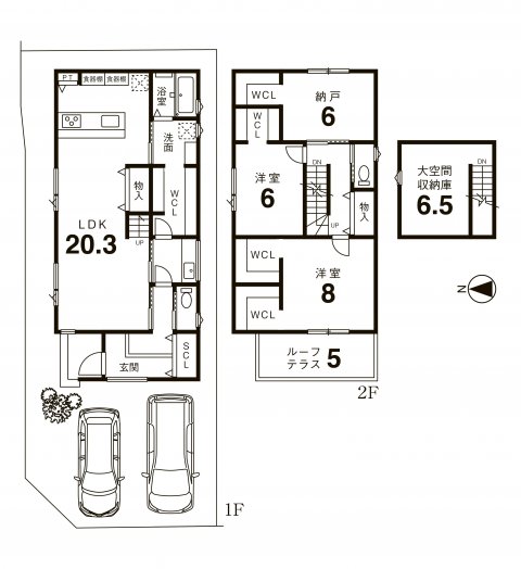
| 建物価格(税込) | 2819万円 | ||
|---|---|---|---|
| 建物面積 | 115.92㎡(35.06坪) | ||
| 取引形態 | 売主 | 販売区画数/総区画数 | 1区画/2区画 |
|---|---|---|---|
| 土地面積 | 公簿145.51㎡ | ||
| 接道状況 |
北 幅員 約2.87m ~ 約3.16m公道に約15.57m接面 西 幅員 約4.32m 公道に約7.40m接面 |
||
| 私道負担 | - | ||
| 地目 | 宅地 | 用途地域 | 準工業地域 |
| 建ぺい率 | 60% | 容積率 | 200% |
| 他の法令上の制限 | 準防火地域 20m第3種高度地区 | 設備 | 飲用水:水道(公営) ガス:都市ガス 汚水:公共下水 |
| 建築条件 | 有 | ||
| 建築条件付宅地とは | 建築条件付き土地とは、その土地に建築する建物の建築請負契約が、一定期間内(概ね3ヶ月程度)に成立することを条件として売買される土地のことをいいます。建物の設計プランは、土地購入者の自由意思により決定可能で、土地売買契約後、建築請負会社と購入した土地に建設する建物について協議することになります。 期間内に納得のいくプランが出来ず、建築請負契約が成立しなければ土地売買契約は白紙となり、支払済みの金銭は全て返却されます。 | ||
| 引渡 | 即時 | 現況 | 更地 |
| Mapコード | 7584752*60 | ||
| 学区 | 朱雀第三小学校、松原中学校 | ||
| 備考 | 有効宅地面積:135.47㎡ 隅切り部分:0.55m セットバック面積 約10.04㎡ |
||
情報提供日:2026/03/26(毎日情報更新)
取引条件の有効期限:2026/04/25
簡単ローンシミュレーション
ご検討中の「借入金額」「借入期間」「金利」で自由にシミュレーションできます!
借入金額 万円 借入期間 年 金利 % 毎月のお支払い額 円
※住宅ローン金利については各種金融機関のサイトなどでご確認ください。
※ボーナス払いなしの計算となります。また、お客様のご条件により金利の優遇幅が変動する場合があります。詳細はお気軽にご相談ください。
簡単ローンシミュレーション
ご検討中の「借入金額」「借入期間」「金利」で自由に
シミュレーションできます!
借入金額 万円
借入期間 年 金利 %
毎月のお支払い額 円
※住宅ローン金利については各種金融機関のサイトなどでご確認ください。
※ボーナス払いなしの計算となります。また、お客様のご条件により金利の優遇幅が変動する場合があります。詳細はお気軽にご相談ください。