0120-848-046
〒530-0003
大阪市北区堂島2丁目3番5号 JPR堂島ウエスト4F
営業時間:10:00~18:00 定休日:火・水曜日
/ 大阪の物件詳細情報 /PROPERTY
NEW
6,180万円(税込)

高槻市千代田町92番5
(住居表示: 千代田町3-3付近)

阪急線高槻市駅まで徒歩10分
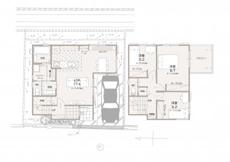
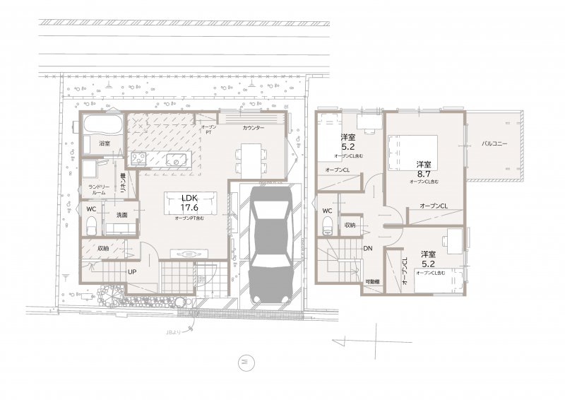
※間取り図・パース・写真中に車や家具を掲載の場合は、配置例を示したもので実際に設置されているわけではありません。特にコメントがない場合は家具や車などは販売価格に含まれません。
たっぷり乾かせる大容量の8㎏タイプを採用!
短時間乾燥だから、干す手間も取り込む手間もかかりません。
毎日使っても安心の低コスト。コインランドリーよりもおトク!
気になる衣類の悪臭を、ガスの温風で除去します。
新品のタオルのように、繊維を立ち上げふんわりの仕上がりに。
家じゅう“潤いナノバブル水”で暮らしを豊かに。水中の細かな気泡で肌や髪を潤し、料理、お風呂、洗濯、掃除など、家庭内で水を使用するあらゆるシーンで役立ちます。
<Beauty Aqua4つの特徴> ①保温 ②保湿 ③洗浄 ④時短 ”潤いナノバブル水”で豊かな暮らしを始めませんか?
【保湿・保温】お風呂・シャワーでスッキリ奇麗に 【洗浄】洗濯物がサッパリと洗い上がる 【時短】清潔な水回りで、家事ストレスが軽減
ゼロホームの100年住宅は、高品質を維持するための構造にて施工し、お引渡しの後も手厚いアフターサービス体制でサポートします。
長期にわたって安全かつ快適に居住できる性能を備えていると国が認定した住宅。税制面やローンの金利面でもメリットがあります。
ZEH水準の「断熱等性能等級5」および「一次エネルギー消費量等級6」を同時に満たしています。季節に関わらず、室温の安定を保ち、快適な室内環境を実現します。
スケルトンとインフィルを明確に区別し、構造躯体を傷めることなく、設備・仕上げ材が容易に交換できる工夫を組み込んでいます。
壁内の水分を透湿防水シートから通気層を通して外部に放出させる「外壁通気工法」を採用し、建物の耐久性を高めています。
構造躯体に影響を及ぼさずに、給排水管等の点検補修ができる工夫をさまざまに取り入れ、建てた後の維持管理がしやすい設計になっています。
独自の構造50年保証、安心の地盤保証20年、さらに保存している定期点検やメンテナンスの記録を住宅履歴書としてお渡しすることができます。
ゼロホームは2012年より全ての新築住宅の建築に国産材を使用。
ゼロホームアプリから、お引渡し後のメンテナンス依頼やお困りごとのご相談が可能!また、アフターサービスについては、オーナー様用webサイトをご覧ください。
手元から足元までがすべてスライド式で収納力抜群のシステムキッチン。3口コンロ(無水両面焼きグリル)・食器洗い乾燥機・オールインワン浄水栓付きです。※物件によりカラーや設置イメージが異なる場合があります。
ラクな姿勢で使いやすいスライド式「食器洗い乾燥機」が標準装備。後片付けの時間が短縮でき、シンクまわりもすっきり片付きます。
機能性に優れた三面鏡(長寿命・省電力のスリムLED付)と、豊富な収納キャビネットがついたスタイリッシュな洗面化粧台です。※物件によりカラーや設置イメージが異なる場合があります。
洗面化粧台下部は、奥のものまで取り出しやすい引き出し式です。
落ちにくい汚物汚れも、水を流すだけツルンっと落とせる新素材”アクアセラミック”で毎日のお手入れ簡単!※物件によりカラーや設置イメージが異なる場合があります。
毎日のお手入れがしやすい工夫と心地よい使用感を兼ね備えた、シンプルデザインのシステムバス。※物件によりカラーや設置イメージが異なる場合があります。
| 取引形態 | 売主 | 販売戸数/総戸数 | 1戸/1戸 |
|---|---|---|---|
| 敷地面積 | 公簿101.28㎡ | 建物面積 | 約88.81㎡ |
| 間取り | 3LDK | 駐車場 | 有 |
| 建物構造 | 木造ガルバリウム鋼板ぶき 地上2階 | 建築年月 | 2026年6月完成予定 |
| 接道状況 | 西 幅員 約3.86m ~ 約4.00m私道に約9.76m接面 | ||
| 私道負担 | 含む約20.90㎡ | ||
| 地目 | 宅地 | 用途地域 | 第2種中高層住居専用地域 |
| 建ぺい率 | 60% | 容積率 | 200% |
| 他の法令上の制限 | 準防火地域 10m第2種高度地区 | 設備 | 飲用水:水道(公営) ガス:都市ガス 汚水:公共下水 雑排水:公共下水 雨水:公共下水 |
| 引渡 | 2026年6月下旬 | 現況 | 未完成 |
| 建築確認番号 | 確認サービス第KS126-6120-50020号 | Mapコード | 7031632*25 |
| 学区 | 松原小学校、第六中学校 | ||
| 備考 | ・表題登記関連費用:110,000円(税込)別途要 ・長期優良住宅関連費用:110,000円(税込)別途要 ・居住誘導区域内 ・造付バルコニー面積:約6.21㎡ |
||
情報提供日:2026/03/10(毎日情報更新)
取引条件の有効期限:2026/04/09
簡単ローンシミュレーション
ご検討中の「借入金額」「借入期間」「金利」で自由にシミュレーションできます!
借入金額 万円 借入期間 年 金利 % 毎月のお支払い額 円
※住宅ローン金利については各種金融機関のサイトなどでご確認ください。
※ボーナス払いなしの計算となります。また、お客様のご条件により金利の優遇幅が変動する場合があります。詳細はお気軽にご相談ください。
簡単ローンシミュレーション
ご検討中の「借入金額」「借入期間」「金利」で自由に
シミュレーションできます!
借入金額 万円
借入期間 年 金利 %
毎月のお支払い額 円
※住宅ローン金利については各種金融機関のサイトなどでご確認ください。
※ボーナス払いなしの計算となります。また、お客様のご条件により金利の優遇幅が変動する場合があります。詳細はお気軽にご相談ください。