0120-046-303
〒612-8449
京都市伏見区竹田西小屋ノ内町50
営業時間:10:00~18:00 定休日:火・水曜日
/ 京都の物件詳細情報 /PROPERTY
NEW
5,480万円(税込)

向日市寺戸町向畑32番24

阪急京都線東向日駅まで徒歩9分
JR京都線向日町駅まで徒歩12分
【100年住宅のゼロホーム】
~角地で開放感のある向日市寺戸町向畑~
・阪急「東向日」駅徒歩9分!大阪方面への通勤・通学にも便利です!
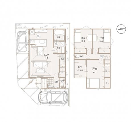
・広々18JのLDKは、床暖房完備です。
・トイレは2カ所あり、朝のトイレラッシュもこれで解決です(^^)/
・玄関や、階段下など収納スペースをたっぷりと確保しました。
・2階インナーバルコニーは、天候に左右されず洗濯物を干すのに便利です!
・共働き世帯に嬉しい宅配BOX付!
・両手が塞がっていても安心!便利なポケットキー付玄関ドアです。
・小型車、普通車各1台駐車可能です。
※未完成物件でも、弊社近隣完成物件にて仕様案内もさせていただきます!
お気軽にお問い合わせください!
NEW
5,480万円(税込)

向日市寺戸町向畑32番24

阪急京都線東向日駅まで徒歩9分
JR京都線向日町駅まで徒歩12分
【100年住宅のゼロホーム】
~角地で開放感のある向日市寺戸町向畑~
・阪急「東向日」駅徒歩9分!大阪方面への通勤・通学にも便利です!
・広々18JのLDKは、床暖房完備です。
・トイレは2カ所あり、朝のトイレラッシュもこれで解決です(^^)/
・玄関や、階段下など収納スペースをたっぷりと確保しました。
・2階インナーバルコニーは、天候に左右されず洗濯物を干すのに便利です!
・共働き世帯に嬉しい宅配BOX付!
・両手が塞がっていても安心!便利なポケットキー付玄関ドアです。
・小型車、普通車各1台駐車可能です。
※未完成物件でも、弊社近隣完成物件にて仕様案内もさせていただきます!
お気軽にお問い合わせください!
※間取り図・パース・写真中に車や家具を掲載の場合は、配置例を示したもので実際に設置されているわけではありません。特にコメントがない場合は家具や車などは販売価格に含まれません。
ゼロホームの100年住宅は、高品質を維持するための構造にて施工し、お引渡しの後も手厚いアフターサービス体制でサポートします。
長期にわたって安全かつ快適に居住できる性能を備えていると国が認定した住宅。税制面やローンの金利面でもメリットがあります。
災害時の停電に備える!大阪ガスの「エネファーム発電ユニット」を無料で導入できるサービスです。
停電時には自立発電で最大700wの電気を供給できるので、照明やテレビ、冷暖房やお風呂、シャワーなども利用可能。さらに断水時はタンク内のお湯(水)を生活用水に使うこともでき、もしもの時に備えた暮らしをスタートできます。
スケルトンとインフィルを明確に区別し、構造躯体を傷めることなく、設備・仕上げ材が容易に交換できる工夫を組み込んでいます。
壁内の水分を透湿防水シートから通気層を通して外部に放出させる「外壁通気工法」を採用し、建物の耐久性を高めています。
構造躯体に影響を及ぼさずに、給排水管等の点検補修ができる工夫をさまざまに取り入れ、建てた後の維持管理がしやすい設計になっています。
独自の構造50年保証、安心の地盤保証20年、さらに保存している定期点検やメンテナンスの記録を住宅履歴書としてお渡しすることができます。
ゼロホームは2012年より全ての新築住宅の建築に国産材を使用。
高い断熱性能で、夏涼しく、冬暖かい、高性能樹脂窓。「樹脂」+「Low-E複層ガラス」で実現した国内最高レベルの断熱性能を持つサッシです。
ラクな姿勢で使いやすいスライド式「食器洗い乾燥機」が標準装備。後片付けの時間が短縮でき、シンクまわりもすっきり片付きます。
コンロ側を壁に付けたペニンシュラタイプのキッチン。対面の見通しのよさを生かしながら、スペース効率も考えたキッチンです。※物件によりカラーや設置イメージが異なる場合があります。
お湯が冷めにくい、浴槽保温材と保温組フタの‟ダブル保温”構造。くるりんポイ排水口など毎日のお手入れもラクラク。ガス温水浴室暖房乾燥機付です。※物件によりカラーや設置イメージが異なる場合があります。
機能性に優れた三面鏡(長寿命・省電力のスリムLED付)と、豊富な収納キャビネットがついたスタイリッシュな洗面化粧台です。※物件によりカラーや設置イメージが異なる場合があります。
落ちにくい汚物汚れも、水を流すだけツルンっと落とせる新素材”アクアセラミック”で毎日のお手入れ簡単!※物件によりカラーや設置イメージが異なる場合があります。
| 取引形態 | 売主 | 販売戸数/総戸数 | 1戸/1戸 |
|---|---|---|---|
| 敷地面積 | 公簿145.62㎡ | 建物面積 | 約84.78㎡ |
| 間取り | 3LDK | 駐車場 | 有 |
| 建物構造 | 木造 地上2階 | 建築年月 | 2026年5月完成予定 |
| 接道状況 |
北 幅員 約4.73m ~ 約4.74m私道に約9.27m接面 西 幅員 約3.86m ~ 約3.92m私道に約4.78m接面 私道に約4.12m接面 |
||
| 私道負担 | 含む約51.87㎡ | ||
| 地目 | 宅地 | 用途地域 | 第1種住居地域 |
| 建ぺい率 | 60% | 容積率 | 200% |
| 他の法令上の制限 | 第2種高度地区 | 設備 | 飲用水:水道(公営) ガス:都市ガス 汚水:公共下水 |
| 引渡 | 2026年5月下旬 | 現況 | 未完成 |
| 建築確認番号 | 確認サービス第 KS125-6120-54085 号 | Mapコード | 7429134*45 |
| 学区 | 第6向陽小学校、西ノ岡中学校 | ||
| 備考 | 表題登記関連費用110,000円(税込)、長期優良住宅関連費用110,000円(税込)別途要 造付バルコニー:4.96㎡ ENETO利用の為、大阪ガスとの電気契約必須 |
||
情報提供日:2026/04/23(毎日情報更新)
取引条件の有効期限:2026/05/23
簡単ローンシミュレーション
ご検討中の「借入金額」「借入期間」「金利」で自由にシミュレーションできます!
借入金額 万円 借入期間 年 金利 % 毎月のお支払い額 円
※住宅ローン金利については各種金融機関のサイトなどでご確認ください。
※ボーナス払いなしの計算となります。また、お客様のご条件により金利の優遇幅が変動する場合があります。詳細はお気軽にご相談ください。
簡単ローンシミュレーション
ご検討中の「借入金額」「借入期間」「金利」で自由に
シミュレーションできます!
借入金額 万円
借入期間 年 金利 %
毎月のお支払い額 円
※住宅ローン金利については各種金融機関のサイトなどでご確認ください。
※ボーナス払いなしの計算となります。また、お客様のご条件により金利の優遇幅が変動する場合があります。詳細はお気軽にご相談ください。