0120-848-046
〒530-0003
大阪市北区堂島2丁目3番5号 JPR堂島ウエスト4F
営業時間:10:00~18:00 定休日:火・水曜日
/ 兵庫の物件詳細情報 /PROPERTY
NEW
3,780万円(税込)

尼崎市宮内町二丁目118番
(住居表示: 宮内町2丁目118番)

阪神本線出屋敷駅まで徒歩3分
●人気のガス衣類乾燥機「乾太くん」標準装備で、洗濯物は約1時間でふんわり乾燥。
天気や時間を気にせず、家事がグッとラクに。
●ナノバブル水で家じゅう潤い!髪にもお肌にも優しいお家。
●耐震等級1.5倍の安心構造。
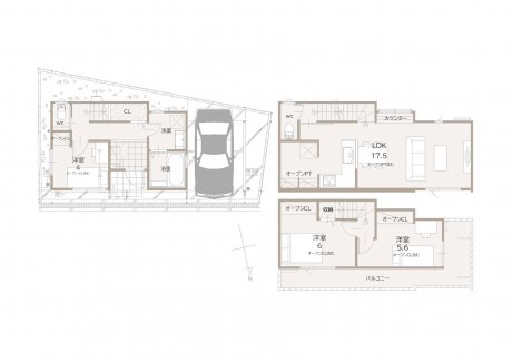
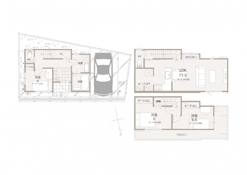
●3LDKのゆとりある間取りに駐車場付き。
毎日がうれしくなる駅徒歩3分以内!
忙しい朝にゆとりが生まれます♪
※間取り図・パース・写真中に車や家具を掲載の場合は、配置例を示したもので実際に設置されているわけではありません。特にコメントがない場合は家具や車などは販売価格に含まれません。
たっぷり乾かせる大容量の8㎏タイプを採用!
短時間乾燥だから、干す手間も取り込む手間もかかりません。
毎日使っても安心の低コスト。コインランドリーよりもおトク!
気になる衣類の悪臭を、ガスの温風で除去します。
新品のタオルのように、繊維を立ち上げふんわりの仕上がりに。
家じゅう“潤いナノバブル水”で暮らしを豊かに。水中の細かな気泡で肌や髪を潤し、料理、お風呂、洗濯、掃除など、家庭内で水を使用するあらゆるシーンで役立ちます。
<Beauty Aqua4つの特徴> ①保温 ②保湿 ③洗浄 ④時短 ”潤いナノバブル水”で豊かな暮らしを始めませんか?
【保湿・保温】お風呂・シャワーでスッキリ奇麗に 【洗浄】洗濯物がサッパリと洗い上がる 【時短】清潔な水回りで、家事ストレスが軽減
手元から足元までがすべてスライド式で収納力抜群のシステムキッチン。3口コンロ(無水両面焼きグリル)・食器洗い乾燥機・オールインワン浄水栓付きです。※物件によりカラーや設置イメージが異なる場合があります。
ラクな姿勢で使いやすいスライド式「食器洗い乾燥機」が標準装備。後片付けの時間が短縮でき、シンクまわりもすっきり片付きます。
機能性に優れた三面鏡(長寿命・省電力のスリムLED付)と、豊富な収納キャビネットがついたスタイリッシュな洗面化粧台です。※物件によりカラーや設置イメージが異なる場合があります。
洗面化粧台下部は、奥のものまで取り出しやすい引き出し式です。
落ちにくい汚物汚れも、水を流すだけツルンっと落とせる新素材”アクアセラミック”で毎日のお手入れ簡単!※物件によりカラーや設置イメージが異なる場合があります。
毎日のお手入れがしやすい工夫と心地よい使用感を兼ね備えた、シンプルデザインのシステムバス。※物件によりカラーや設置イメージが異なる場合があります。
| 取引形態 | 売主 | 販売戸数/総戸数 | 1戸/1戸 |
|---|---|---|---|
| 敷地面積 | 公簿56.39㎡ | 建物面積 | 約80.78㎡ |
| 間取り | 3LDK | 駐車場 | 有 |
| 建物構造 | 木造ガルバリウム鋼板ぶき 地上3階 | 建築年月 | 2026年3月完成予定 |
| 接道状況 | 北 幅員 約5.38m 公道に約10.43m接面 | ||
| 私道負担 | - | ||
| 地目 | 宅地 | 用途地域 | 第1種住居地域 |
| 建ぺい率 | 70% | 容積率 | 200% |
| 他の法令上の制限 | 準防火地域 第3種高度地区 | 設備 | 飲用水:水道(公営) ガス:都市ガス 汚水:公共下水 雑排水:公共下水 雨水:公共下水 |
| 引渡 | 2026年3月下旬 | 現況 | 未完成 |
| 建築確認番号 | 確認サービス第KS125-6120-52706号 | Mapコード | 1453864*47 |
| 学区 | 竹谷小学校、中央中学校 | ||
| 備考 | ・表題登記関連費用:110,000円(税込)別途要 ・住宅省エネルギー性能証明書申請費用:110,000円(税込)別途要 ・3F造付バルコニー面積:約12.05㎡・居住誘導区域 |
||
情報提供日:2026/01/28(毎日情報更新)
取引条件の有効期限:2026/02/27
簡単ローンシミュレーション
ご検討中の「借入金額」「借入期間」「金利」で自由にシミュレーションできます!
借入金額 万円 借入期間 年 金利 % 毎月のお支払い額 円
※住宅ローン金利については各種金融機関のサイトなどでご確認ください。
※ボーナス払いなしの計算となります。また、お客様のご条件により金利の優遇幅が変動する場合があります。詳細はお気軽にご相談ください。
簡単ローンシミュレーション
ご検討中の「借入金額」「借入期間」「金利」で自由に
シミュレーションできます!
借入金額 万円
借入期間 年 金利 %
毎月のお支払い額 円
※住宅ローン金利については各種金融機関のサイトなどでご確認ください。
※ボーナス払いなしの計算となります。また、お客様のご条件により金利の優遇幅が変動する場合があります。詳細はお気軽にご相談ください。