0120-031-046
〒615-0016
京都市右京区西院西淳和院町52-11
営業時間:10:00~18:00 定休日:火・水曜日
/ 京都の物件詳細情報 /PROPERTY
NEW
3,780万円(税込)

京都市伏見区桃山町大島25番222

京阪宇治線桃山南口駅まで徒歩6分
京阪バス桃山南口バス停まで徒歩9分
━━ おすすめポイント ━━
◎日当たり・通風良好で暮らしやすい住環境
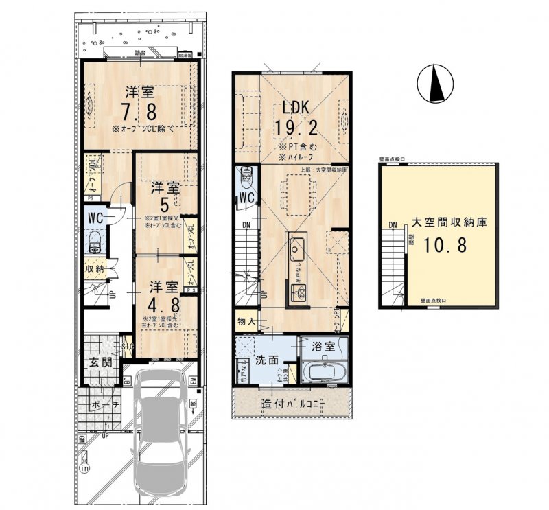
◎10.8帖の大空間収納庫×SIC付き
◎小学校も徒歩圏内で通学安心
*物件の詳細につきましては、お気軽にお問い合わせください!
(株)ゼロ・コーポレーション 西院支店 (TEL:0120-031-046)
※間取り図・パース・写真中に車や家具を掲載の場合は、配置例を示したもので実際に設置されているわけではありません。特にコメントがない場合は家具や車などは販売価格に含まれません。
耐震等級1の1.5倍の強度で、消防署や警察署など防災の拠点となる建物に求められる耐震性能です。ゼロホームは地震に強い家づくりをしています。
高性能グラスウールを採用し、住まいをまるごと断熱化。外気温の影響を抑え、夏も冬もいつも快適な室内空間をつくります。
基準一次エネルギー消費量から20%以上削減(BEI≦0.8)を達成した高い省エネ性能です。
長期にわたって安全かつ快適に居住できる性能を備えていると国が認定した住宅。税制面やローンの金利面でもメリットがあります。
長期優良住宅の断熱性能等級は5。地球にも家計にもやさしいお家です。
ゼロホームアプリから、お引渡し後のメンテナンス依頼やお困りごとのご相談が可能!また、アフターサービスについては、オーナー様用webサイトをご覧ください。
ゼロホームの100年住宅は、高品質を維持するための構造にて施工し、お引渡しの後も手厚いアフターサービス体制でサポートします。
スケルトンとインフィルを明確に区別し、構造躯体を傷めることなく、設備・仕上げ材が容易に交換できる工夫を組み込んでいます。
壁内の水分を透湿防水シートから通気層を通して外部に放出させる「外壁通気工法」を採用し、建物の耐久性を高めています。
構造躯体に影響を及ぼさずに、給排水管等の点検補修ができる工夫をさまざまに取り入れ、建てた後の維持管理がしやすい設計になっています。
独自の構造50年保証、安心の地盤保証20年、さらに保存している定期点検やメンテナンスの記録を住宅履歴書としてお渡しすることができます。
ゼロホームは2012年より全ての新築住宅の建築に国産材を使用。
| 取引形態 | 売主 | 販売戸数/総戸数 | 2戸/2戸 |
|---|---|---|---|
| 敷地面積 | 公簿77.32㎡ | 建物面積 | 約86.96㎡ |
| 間取り | 3LDK | 駐車場 | 有 |
| 建物構造 | 木造 地上2階 | 建築年月 | 2026年5月完成予定 |
| 接道状況 | 南 幅員 約5.00m 私道に約4.55m接面 位置指定:第2151号(昭和43年11月8日) | ||
| 私道負担 | 別に11.00㎡(25-223) | ||
| 地目 | 宅地 | 用途地域 | 第1種中高層住居専用地域 |
| 建ぺい率 | 60% | 容積率 | 200% |
| 他の法令上の制限 | 15m第1種高度地区 | 設備 | 飲用水:水道(公営) ガス:都市ガス 汚水:公共下水 |
| 引渡 | 2026年5月下旬 | 現況 | 未完成 |
| 建築確認番号 | 確認サービス第 KS125-6120-52980 号 | Mapコード | 7 349 237*14 |
| 学区 | 桃山南小学校、桃山中学校 | ||
| 備考 | 大空間収納庫:約20.04㎡ 造付バルコニー:約4.45㎡ 表題登記関連費用:110,000円(税込)、長期優良住宅関連費用:110,000円(税込) 別途要 |
||
情報提供日:2026/03/26(毎日情報更新)
取引条件の有効期限:2026/04/25
簡単ローンシミュレーション
ご検討中の「借入金額」「借入期間」「金利」で自由にシミュレーションできます!
借入金額 万円 借入期間 年 金利 % 毎月のお支払い額 円
※住宅ローン金利については各種金融機関のサイトなどでご確認ください。
※ボーナス払いなしの計算となります。また、お客様のご条件により金利の優遇幅が変動する場合があります。詳細はお気軽にご相談ください。
簡単ローンシミュレーション
ご検討中の「借入金額」「借入期間」「金利」で自由に
シミュレーションできます!
借入金額 万円
借入期間 年 金利 %
毎月のお支払い額 円
※住宅ローン金利については各種金融機関のサイトなどでご確認ください。
※ボーナス払いなしの計算となります。また、お客様のご条件により金利の優遇幅が変動する場合があります。詳細はお気軽にご相談ください。