0120-046-303
〒612-8449
京都市伏見区竹田西小屋ノ内町50
営業時間:10:00~18:00 定休日:火・水曜日
/ 京都の物件詳細情報 /PROPERTY
完成済
PRICE DOWN
4,480万円(税込)

京都市伏見区新町十四丁目276番

近鉄京都線伏見駅まで徒歩6分
京阪本線丹波橋駅まで徒歩8分
●近鉄・京阪「丹波橋」駅2WAYアクセス
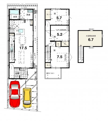
●LDK17.5帖の広々としたリビング
●全居室収納付+大空間収納庫付の2SLDK!お荷物すっきり片付けていただけます♪
●食洗機、浴室乾燥機、モニタ付インターホンなど暮らしに役立つ設備が充実!
●耐震等級3
●駐車スペース2台分有、来客時にも便利
●徒歩10分圏内にスーパー・コンビニ・ドラッグストアがあり、毎日のお買い物にも困りません♪
●住吉小学校約293mとお子様の通学も安心の距離
☆暑さ寒さに強く、メンテナンスがしやすい構造の「ゼロホームの100年住宅」をぜひご覧ください!
完成済
PRICE DOWN
4,480万円(税込)

京都市伏見区新町十四丁目276番

近鉄京都線伏見駅まで徒歩6分
京阪本線丹波橋駅まで徒歩8分
●近鉄・京阪「丹波橋」駅2WAYアクセス
●LDK17.5帖の広々としたリビング
●全居室収納付+大空間収納庫付の2SLDK!お荷物すっきり片付けていただけます♪
●食洗機、浴室乾燥機、モニタ付インターホンなど暮らしに役立つ設備が充実!
●耐震等級3
●駐車スペース2台分有、来客時にも便利
●徒歩10分圏内にスーパー・コンビニ・ドラッグストアがあり、毎日のお買い物にも困りません♪
●住吉小学校約293mとお子様の通学も安心の距離
☆暑さ寒さに強く、メンテナンスがしやすい構造の「ゼロホームの100年住宅」をぜひご覧ください!
※間取り図・パース・写真中に車や家具を掲載の場合は、配置例を示したもので実際に設置されているわけではありません。特にコメントがない場合は家具や車などは販売価格に含まれません。
ゼロホームの100年住宅は、高品質を維持するための構造にて施工し、お引渡しの後も手厚いアフターサービス体制でサポートします。
スケルトンとインフィルを明確に区別し、構造躯体を傷めることなく、設備・仕上げ材が容易に交換できる工夫を組み込んでいます。
壁内の水分を透湿防水シートから通気層を通して外部に放出させる「外壁通気工法」を採用し、建物の耐久性を高めています。
構造躯体に影響を及ぼさずに、給排水管等の点検補修ができる工夫をさまざまに取り入れ、建てた後の維持管理がしやすい設計になっています。
独自の構造50年保証、安心の地盤保証20年、さらに保存している定期点検やメンテナンスの記録を住宅履歴書としてお渡しすることができます。
ゼロホームは2012年より全ての新築住宅の建築に国産材を使用。
ラクな姿勢で使いやすいスライド式「食器洗い乾燥機」が標準装備。後片付けの時間が短縮でき、シンクまわりもすっきり片付きます。
コンロ側を壁に付けたペニンシュラタイプのキッチン。対面の見通しのよさを生かしながら、スペース効率も考えたキッチンです。※物件によりカラーや設置イメージが異なる場合があります。
機能性に優れた三面鏡(長寿命・省電力のスリムLED付)と、豊富な収納キャビネットがついたスタイリッシュな洗面化粧台です。※物件によりカラーや設置イメージが異なる場合があります。
洗面化粧台下部は、奥のものまで取り出しやすい引き出し式です。
落ちにくい汚物汚れも、水を流すだけツルンっと落とせる新素材”アクアセラミック”で毎日のお手入れ簡単!※物件によりカラーや設置イメージが異なる場合があります。
毎日のお手入れがしやすい工夫と心地よい使用感を兼ね備えた、シンプルデザインのシステムバス。※物件によりカラーや設置イメージが異なる場合があります。
| 取引形態 | 売主 | 販売戸数/総戸数 | 1戸/1戸 |
|---|---|---|---|
| 敷地面積 | 公簿93.61㎡ | 建物面積 | 85.29㎡ |
| 間取り | 2LDK+S | 駐車場 | 有 |
| 建物構造 | 木造 地上2階 | 築年月 | 2025年2月 |
| 接道状況 | 西 幅員 約3.60m 公道に約5.20m接面 | ||
| 私道負担 | - | ||
| 地目 | 宅地 | 用途地域 | 第1種住居地域 |
| 建ぺい率 | 60% | 容積率 | 200% |
| 他の法令上の制限 | 準防火地域 15m第2種高度地区 | 設備 | 飲用水:水道(公営) ガス:都市ガス 汚水:公共下水 |
| 引渡 | 即時 | 現況 | 完成済 |
| 建築確認番号 | 第2024確認建築京機構市00643号 | Mapコード | 7377750*08 |
| 学区 | 伏見住吉小学校、伏見中学校 | ||
| 備考 | 埋蔵文化財包蔵地(特別一般遺跡)伏見跡地 宅地造成等工事規制区域 ※表題登記関連費用110,000円(税込)、住宅省エネルギー性能証明書申請費用110,000円(税込)別途要 ※造付バルコニー:約4.96㎡ ※大空間収納庫:約13.66㎡ ※納戸申請有り ※築後未入居 セットバック面積 約0.97㎡ |
||
情報提供日:2026/04/30(毎日情報更新)
取引条件の有効期限:2026/05/30
簡単ローンシミュレーション
ご検討中の「借入金額」「借入期間」「金利」で自由にシミュレーションできます!
借入金額 万円 借入期間 年 金利 % 毎月のお支払い額 円
※住宅ローン金利については各種金融機関のサイトなどでご確認ください。
※ボーナス払いなしの計算となります。また、お客様のご条件により金利の優遇幅が変動する場合があります。詳細はお気軽にご相談ください。
簡単ローンシミュレーション
ご検討中の「借入金額」「借入期間」「金利」で自由に
シミュレーションできます!
借入金額 万円
借入期間 年 金利 %
毎月のお支払い額 円
※住宅ローン金利については各種金融機関のサイトなどでご確認ください。
※ボーナス払いなしの計算となります。また、お客様のご条件により金利の優遇幅が変動する場合があります。詳細はお気軽にご相談ください。