![MOTENASIE [モテナシエ]](https://zerohome.jp/wp-content/themes/zerohome/tenji_imadegawa_renewal/img/motenashie/mv_pc.jpg)
![MOTENASIE [モテナシエ]](https://zerohome.jp/wp-content/themes/zerohome/tenji_imadegawa_renewal/img/motenashie/mv_sp.jpg)
暮らしの中に、
とびきりのおもてなし空間。
MOTENASIE[モテナシエ]
今出川住宅展示場の2階建て新モデルハウスMOTENASIE [モテナシエ]は、「家」が持つ、家族や友人を迎えるあたたかな想いと、「おもてなし」が醸し出す、特別なひとときを彩るという上質感。その二つを重ね合わせ、“もてなす家”という新しい価値観を表現しています。
建物種類
- 2階建 郊外タイプ
面積表
- 1F 床面積
- 68.73㎡
- 2F 床面積
- 47.61㎡
- 建築面積
- 70.38㎡(21.28 坪)
- 延床面積
- 116.34㎡(35.19 坪)
- 施工床面積
- 146.14㎡(44.20 坪)
設備
- システムキッチン
- GRAFTEKT
- ユニットバス
- タカラスタンダード
- 洗面化粧台
- アイカ工業・ミラタップ
- トイレ
- 1F:LIXIL
2F:TOTO・アイカ工業・ミラタップ - 玄関土間手洗い
- アイカ工業・ミラタップ
- パウダー手洗い
- ミラタップ・AQUAPiA
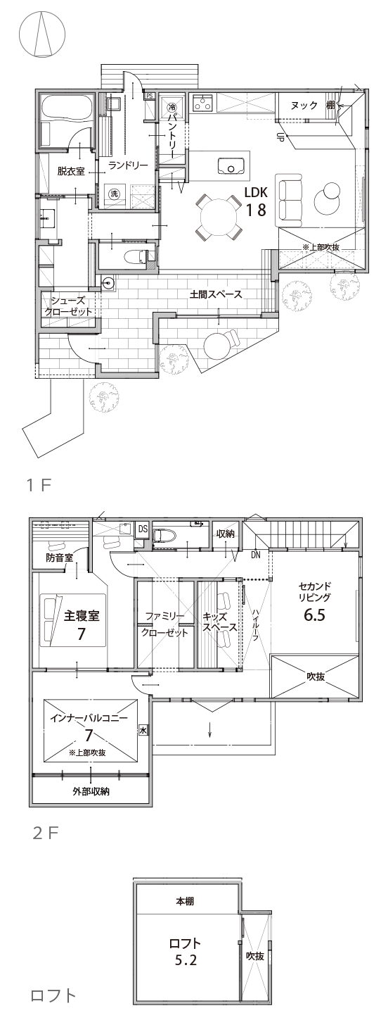
LAYOUT
間取り図


- 1階床面積
- 68.73㎡
- 2階床面積
- 47.61㎡
- 建築面積
- 70.38㎡(21.28 坪)
- 延床⾯積
- 116.34㎡(35.19 坪)
- 施工床面積
- 146.14㎡(44.20 坪)
DETAIL
モデルハウス詳細
POINT.01
LDK一体型の土間空間
玄関から続く土間とリビングやキッチンと一体化することで開放感のある空間を実現。
⼟間スペースで愛⽝と戯れたり、テラスも解放してBBQを楽しんだりと使い⽅は自由自在です。休日の過ごし方が広がります。
POINT.02
居心地のいい隠れ家”ヌック”
造作クッション付きのヌックスペースで⼼地よく“こもれる”時間を演出。
ヌックがあることで家での過ごし方の楽しみが広がり、家族がゆるやかにつながる、ほどよい距離感が生まれます。
POINT.03
家事ラク動線
令和の共働き世帯にはうれしい「家事ラク動線」。
キッチンとランドリーは⼀箇所にまとめ、ランドリースペースには乾太くん×ホスクリーン×アイロンスペースの贅沢な組み合わせで、洗濯から⼲す・畳むが⼀箇所で完結します。毎⽇時間に追われる忙しい夫婦にもゆとりが⽣まれます。
POINT.04
ただいま動線
土間つながりで使いやすいシューズクローゼット。
靴や上着、カバンなど収納できる広々としたスペースの先には洗面台があり、手洗い習慣が身につきます。そのままリビングに向かうことも、汚れが気になるときは脱衣所・バスルームへ一直線に向かうこともできます。
POINT.05
おもてなし動線
お友だちを招いたり、お客様が来ても安心のおもてなし動線。
玄関から続く広い土間スペースには、ちょっとした手洗いも完備。家族が普段使うただいま動線とは別動線でリビングに向かえるので、家族のプライバシーをしっかり守れます。
POINT.06
暮らし広がるセカンドリビング
1Fリビングからの吹き抜けでつながるセカンドリビングは、キッズスペースやロフトとも繋がり、フレキシブルな空間で家族の存在を感じつつ、思い思いの過ごし方ができるフリースペースです。
POINT.07
遊び心満載のキッズスペース
創り付けの木調デスクスペースには室内窓のデコ窓などをあしらい、遊び心や可愛らしさを演出。
デスクスペース上に実用的なロフトを設け、キッズ用寝室として使えます。キッズが喜ぶ秘密基地のようなスペシャルな空間です。
POINT.08
ホテルライクな主寝室
間接照明で醸し出す、旅先で出会うようなワンランク上の上質空間。
ローベッドにすることで空間全体が広く感じられます。飽きの来ないモダンデザインで統一し、忙しい毎日の疲れを癒す、心地よい雰囲気を演出しています。
POINT.09
プライベート感のある
インナーバルコニー
吹抜けのインナーバルコニーは、外部からは見えない設計でプライバシーを確保。
7帖の広々バルコニーには水栓を設けているので、休日は家族でおうちキャンプを楽しむこともできます。まちなかでも人目を気にせず、夜空をゆっくり眺めたり日光浴をしたり使い方は自由自在。
POINT.10
京都らしい和モダンな外観
スリット窓や縦長の窓が光を柔らかく取り入れ、日々の暮らしに心地よさをプラスしました。
京都の街並みに馴染みながらも、ふと目を引く“さりげない美しさ”を感じさせる外観デザイン。
技術の力で叶えるゼロホームの高性能住宅 BASE3
精度の高い施工技術と徹底したチェック体制で、断熱性・気密性を追求。
第3種換気システムで空気の流れを最適化し、一年中快適で健康的な住環境を実現します。

高断熱

高気密

高換気

ゼロホームが届ける高気密・高断熱の高性能住宅シリーズ「BASE3」の最新モデルMOTENASIE[モテナシエ]は、HEAT20 G2レベルです。
断熱等性能等級6、HEAT20 G2レベルの「夏すずしく冬あたたかい」一年中快適な空間をぜひご体感ください。
※UA値とは断熱性を表す値のことで、この値が小さいほど熱が逃げにくく、断熱性能の高い住宅であるといえます。
※C値とは気密性を表す値のことで、家の中にどれくらい隙間があるのかを数値化したもの。低いほど、家の中に隙間がない高気密な家といえます。
※記載の数値は「MOTENASIE」モデルハウスでの測定値です。
![MOTENASIE[モテナシエ] 3Dモデルハウス](https://zerohome.jp/wp-content/themes/zerohome/tenji_imadegawa_renewal/img/motenashie/3dmodelhouse.jpg)
MOTENASIE[モテナシエ]
3Dモデルハウス
おうちに居ながら実際のモデルハウスを見学できます。
360°ぐるっと見渡すことができ、お部屋の移動も自由自在。
住宅展示場へなかなか足を運ぶことができなくても、バーチャルモデルハウスの見学をどうぞ!!










![MOTENASIE [モテナシエ]](https://zerohome.jp/wp-content/themes/zerohome/tenji_imadegawa_renewal/img/motenashie/photo01.jpg)
![MOTENASIE [モテナシエ]](https://zerohome.jp/wp-content/themes/zerohome/tenji_imadegawa_renewal/img/motenashie/photo02.jpg)
![MOTENASIE [モテナシエ]](https://zerohome.jp/wp-content/themes/zerohome/tenji_imadegawa_renewal/img/motenashie/photo03.jpg)
![MOTENASIE [モテナシエ]](https://zerohome.jp/wp-content/themes/zerohome/tenji_imadegawa_renewal/img/motenashie/photo04.jpg)
![MOTENASIE [モテナシエ]](https://zerohome.jp/wp-content/themes/zerohome/tenji_imadegawa_renewal/img/motenashie/photo05.jpg)
![MOTENASIE [モテナシエ]](https://zerohome.jp/wp-content/themes/zerohome/tenji_imadegawa_renewal/img/motenashie/photo06.jpg)
![MOTENASIE [モテナシエ]](https://zerohome.jp/wp-content/themes/zerohome/tenji_imadegawa_renewal/img/motenashie/photo07.jpg)
![MOTENASIE [モテナシエ]](https://zerohome.jp/wp-content/themes/zerohome/tenji_imadegawa_renewal/img/motenashie/photo08.jpg)
![MOTENASIE [モテナシエ]](https://zerohome.jp/wp-content/themes/zerohome/tenji_imadegawa_renewal/img/motenashie/photo09.jpg)
![MOTENASIE [モテナシエ]](https://zerohome.jp/wp-content/themes/zerohome/tenji_imadegawa_renewal/img/motenashie/photo10.jpg)
![MOTENASIE [モテナシエ]](https://zerohome.jp/wp-content/themes/zerohome/tenji_imadegawa_renewal/img/motenashie/photo11.jpg)
![MOTENASIE [モテナシエ]](https://zerohome.jp/wp-content/themes/zerohome/tenji_imadegawa_renewal/img/motenashie/photo12.jpg)
![MOTENASIE [モテナシエ]](https://zerohome.jp/wp-content/themes/zerohome/tenji_imadegawa_renewal/img/motenashie/photo13.jpg)
![MOTENASIE [モテナシエ]](https://zerohome.jp/wp-content/themes/zerohome/tenji_imadegawa_renewal/img/motenashie/photo14.jpg)
![MOTENASIE [モテナシエ]](https://zerohome.jp/wp-content/themes/zerohome/tenji_imadegawa_renewal/img/motenashie/photo15.jpg)
![MOTENASIE [モテナシエ]](https://zerohome.jp/wp-content/themes/zerohome/tenji_imadegawa_renewal/img/motenashie/photo16.jpg)
![MOTENASIE [モテナシエ]](https://zerohome.jp/wp-content/themes/zerohome/tenji_imadegawa_renewal/img/motenashie/photo17.jpg)
![MOTENASIE [モテナシエ]](https://zerohome.jp/wp-content/themes/zerohome/tenji_imadegawa_renewal/img/motenashie/photo18.jpg)
![MOTENASIE [モテナシエ]](https://zerohome.jp/wp-content/themes/zerohome/tenji_imadegawa_renewal/img/motenashie/photo19.jpg)
![MOTENASIE [モテナシエ]](https://zerohome.jp/wp-content/themes/zerohome/tenji_imadegawa_renewal/img/motenashie/photo20.jpg)
![MOTENASIE [モテナシエ]](https://zerohome.jp/wp-content/themes/zerohome/tenji_imadegawa_renewal/img/motenashie/photo21.jpg)
![MOTENASIE [モテナシエ]](https://zerohome.jp/wp-content/themes/zerohome/tenji_imadegawa_renewal/img/motenashie/photo22.jpg)
![MOTENASIE [モテナシエ]](https://zerohome.jp/wp-content/themes/zerohome/tenji_imadegawa_renewal/img/motenashie/photo23.jpg)
![MOTENASIE [モテナシエ]](https://zerohome.jp/wp-content/themes/zerohome/tenji_imadegawa_renewal/img/motenashie/photo24.jpg)
![MOTENASIE [モテナシエ]](https://zerohome.jp/wp-content/themes/zerohome/tenji_imadegawa_renewal/img/motenashie/photo25.jpg)
![MOTENASIE [モテナシエ]](https://zerohome.jp/wp-content/themes/zerohome/tenji_imadegawa_renewal/img/motenashie/photo26.jpg)
![MOTENASIE [モテナシエ]](https://zerohome.jp/wp-content/themes/zerohome/tenji_imadegawa_renewal/img/motenashie/photo27.jpg)
![MOTENASIE [モテナシエ]](https://zerohome.jp/wp-content/themes/zerohome/tenji_imadegawa_renewal/img/motenashie/photo28.jpg)
![MOTENASIE [モテナシエ]](https://zerohome.jp/wp-content/themes/zerohome/tenji_imadegawa_renewal/img/motenashie/photo29.jpg)
![MOTENASIE [モテナシエ]](https://zerohome.jp/wp-content/themes/zerohome/tenji_imadegawa_renewal/img/motenashie/photo30.jpg)
![MOTENASIE [モテナシエ]](https://zerohome.jp/wp-content/themes/zerohome/tenji_imadegawa_renewal/img/motenashie/photo31.jpg)
![MOTENASIE [モテナシエ]](https://zerohome.jp/wp-content/themes/zerohome/tenji_imadegawa_renewal/img/motenashie/photo32.jpg)
![MOTENASIE [モテナシエ]](https://zerohome.jp/wp-content/themes/zerohome/tenji_imadegawa_renewal/img/motenashie/photo33.jpg)
![MOTENASIE [モテナシエ]](https://zerohome.jp/wp-content/themes/zerohome/tenji_imadegawa_renewal/img/motenashie/photo34.jpg)
![MOTENASIE [モテナシエ]](https://zerohome.jp/wp-content/themes/zerohome/tenji_imadegawa_renewal/img/motenashie/photo35.jpg)
![MOTENASIE [モテナシエ]](https://zerohome.jp/wp-content/themes/zerohome/tenji_imadegawa_renewal/img/motenashie/photo36.jpg)
見学予約はこちら