0120-099-046
〒603-8242
京都市北区紫野上野町108-1
営業時間:10:00~18:00 定休日:火・水曜日
/ 京都の物件詳細情報 /PROPERTY
NEW
4,080万円(税込)

長岡京市神足四ノ坪12番54

JR京都線長岡京駅まで徒歩13分
阪急バス見場走りバス停まで徒歩6分
JR「長岡京」駅 徒歩13分
阪急バス「見場走り」停 徒歩6分
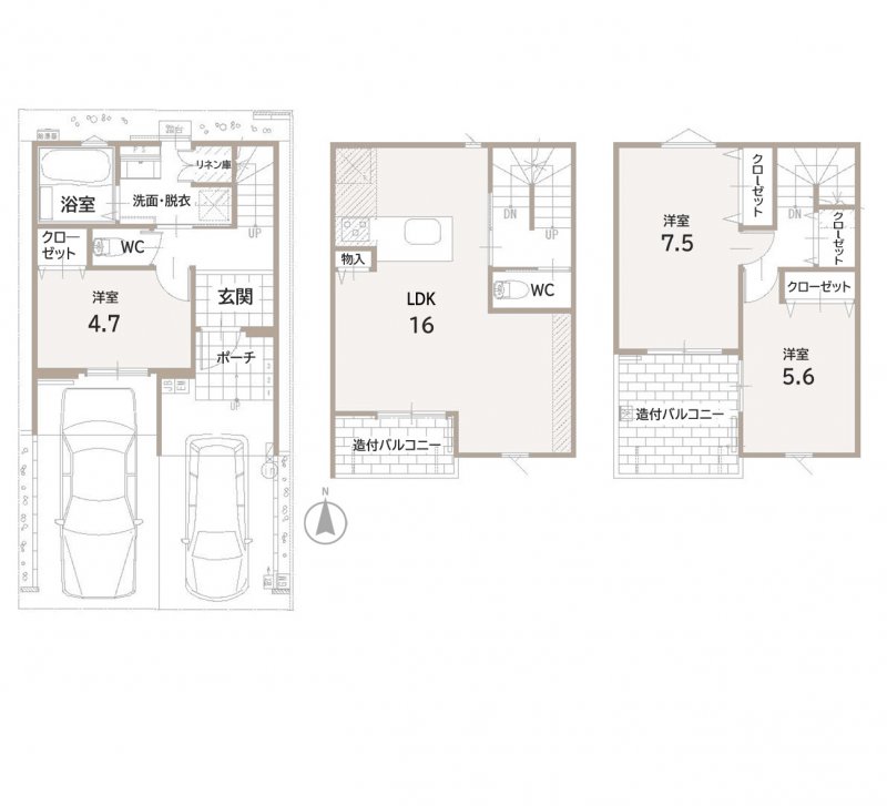
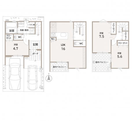
■車二台駐車可能
■南向きバルコニー
■人気の対面キッチン
■トイレ2箇所は朝の混み合う時間帯に便利
■全居室収納有
■ご質問等、お気軽にお電話下さい!
■ご入居後のアフターメンテナンスもゼロホームにお任せ下さい。
※間取り図・パース・写真中に車や家具を掲載の場合は、配置例を示したもので実際に設置されているわけではありません。特にコメントがない場合は家具や車などは販売価格に含まれません。
ゼロホームの100年住宅は、高品質を維持するための構造にて施工し、お引渡しの後も手厚いアフターサービス体制でサポートします。
スケルトンとインフィルを明確に区別し、構造躯体を傷めることなく、設備・仕上げ材が容易に交換できる工夫を組み込んでいます。
壁内の水分を透湿防水シートから通気層を通して外部に放出させる「外壁通気工法」を採用し、建物の耐久性を高めています。
構造躯体に影響を及ぼさずに、給排水管等の点検補修ができる工夫をさまざまに取り入れ、建てた後の維持管理がしやすい設計になっています。
独自の構造50年保証、安心の地盤保証20年、さらに保存している定期点検やメンテナンスの記録を住宅履歴書としてお渡しすることができます。
ゼロホームは2012年より全ての新築住宅の建築に国産材を使用。
ラクな姿勢で使いやすいスライド式「食器洗い乾燥機」が標準装備。後片付けの時間が短縮でき、シンクまわりもすっきり片付きます。
コンロ側を壁に付けたペニンシュラタイプのキッチン。対面の見通しのよさを生かしながら、スペース効率も考えたキッチンです。※物件によりカラーや設置イメージが異なる場合があります。
機能性に優れた三面鏡(長寿命・省電力のスリムLED付)と、豊富な収納キャビネットがついたスタイリッシュな洗面化粧台です。※物件によりカラーや設置イメージが異なる場合があります。
洗面化粧台下部は、奥のものまで取り出しやすい引き出し式です。
落ちにくい汚物汚れも、水を流すだけツルンっと落とせる新素材”アクアセラミック”で毎日のお手入れ簡単!※物件によりカラーや設置イメージが異なる場合があります。
毎日のお手入れがしやすい工夫と心地よい使用感を兼ね備えた、シンプルデザインのシステムバス。※物件によりカラーや設置イメージが異なる場合があります。
| 取引形態 | 売主 | 販売戸数/総戸数 | 1戸/1戸 |
|---|---|---|---|
| 敷地面積 | 公簿66.00㎡ | 建物面積 | 約88.51㎡ |
| 間取り | 3LDK | 駐車場 | 有 |
| 建物構造 | 木造 地上3階 | 建築年月 | 2026年2月完成予定 |
| 接道状況 | 南 幅員 約6.04m ~ 約6.05m公道に約6.01m接面 | ||
| 私道負担 | - | ||
| 地目 | 宅地 | 用途地域 | 準工業地域 |
| 建ぺい率 | 60% | 容積率 | 200% |
| 他の法令上の制限 | 準防火地域 | 設備 | 飲用水:水道(公営) ガス:都市ガス 汚水:公共下水 |
| 引渡 | 相談 | 現況 | 未完成 |
| 建築確認番号 | 第 R07確認建築PLN奈支0314 号 | Mapコード | 7310522*87 |
| 学区 | 長岡第九小学校、長岡第三中学校 | ||
| 備考 | 2階造付バルコニー:約3.72㎡ 3階造付バルコニー:約7.45㎡ 表題登記関連費用:110,000円(税込) 設計住宅性能評価書申請費用:110,000円(税込)別途要 |
||
情報提供日:2026/01/07(毎日情報更新)
取引条件の有効期限:2026/02/06
簡単ローンシミュレーション
ご検討中の「借入金額」「借入期間」「金利」で自由にシミュレーションできます!
借入金額 万円 借入期間 年 金利 % 毎月のお支払い額 円
※住宅ローン金利については各種金融機関のサイトなどでご確認ください。
※ボーナス払いなしの計算となります。また、お客様のご条件により金利の優遇幅が変動する場合があります。詳細はお気軽にご相談ください。
簡単ローンシミュレーション
ご検討中の「借入金額」「借入期間」「金利」で自由に
シミュレーションできます!
借入金額 万円
借入期間 年 金利 %
毎月のお支払い額 円
※住宅ローン金利については各種金融機関のサイトなどでご確認ください。
※ボーナス払いなしの計算となります。また、お客様のご条件により金利の優遇幅が変動する場合があります。詳細はお気軽にご相談ください。