0120-848-046
〒530-0003
大阪市北区堂島2丁目3番5号 JPR堂島ウエスト4F
営業時間:10:00~18:00 定休日:火・水曜日
/ 兵庫の物件詳細情報 /PROPERTY
年度内入居可
プレゼント対象
4,680万円(税込)

伊丹市松ケ丘三丁目43番1
(住居表示: 三丁目43-1)

伊丹市市営バス松ヶ丘バス停まで徒歩3分
―――おすすめポイント―――
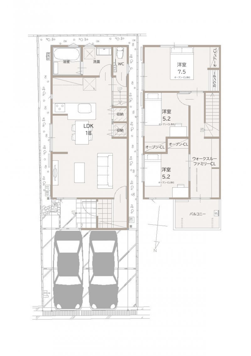
■伊丹市市営 松ケ丘バス停まで徒歩3分のアクセス!
■全室収納付き!COSIE仕様で心も体も満たされる間取り♪
■水回りはすべてなのナノバブルを使用!お肌にも髪にも優しいお家!
■駐車2台可能!来客時も安心!
まずはお気軽に資料請求からどうぞ♪
※間取り図・パース・写真中に車や家具を掲載の場合は、配置例を示したもので実際に設置されているわけではありません。特にコメントがない場合は家具や車などは販売価格に含まれません。
大切なご家族が集まる場所。陽当たりの良いリビングでゆったりと過ごしませんか?
お料理中もご家族との会話が弾む対面式キッチン。家事をしていても家族の様子が伺え安心感があります。
木の温もりを感じる開放的な空間。家族が自然に集まり、くつろげるリビングが魅力
洋室7.5帖 カウンター付きです!仕事や勉強スペースに♪
洋室5.2帖(北) オープンCL付きの使いやすそうなお部屋です。子供部屋や書斎に。
洋室5.2帖(南) 2ヶ所の窓から光を取り込み、明るい空間になっております。
フラットなワークトップの対面キッチン。手元にコンセントもあるので調理家電も便利に使えます。食洗器も浄水器付水栓も標準採用!足元までたっぷりの収納スペースがあるのでストック品もしまえます。
自由な発想で暮らし方に合わせた活用ができるコージエスペース。家族のスタディスペースとして、洗濯物の室内干しスペースとしてなど、幅広く活用できます。
アイアンハンガーパイプは部屋干し用にも、明日のコーディネートを決めるのにも便利な一時掛けスペースに。ハンギンググリーンやガーランドなど、インテリアのアクセントにも使えます。
隠す収納ではなく「魅せる収納」でおしゃれな暮らしを。扉のないオープン収納はモノをしまいながら、好きなモノを上手に飾ることであなたらしいお部屋に彩れます。
毎日の暮らしの中で増えていく家族の衣類や荷物をスッキリ収納。忙しい日々の暮らしを効率的にする家事動線で、家族みんなが使いやすい大容量の収納スペースです。
アクセントクロスにすることで、お部屋をワンランク上の雰囲気に!部屋の壁紙に1面だけ他の面とは異なる色の壁紙を使い、部屋の印象にアクセントを効かせます。
外観デザインは限りなくシンプルでありながら美しい、飽きのこないスマートなデザイン。世代を超えて愛されるシンプルファサードです。
ゼロホームの100年住宅は、高品質を維持するための構造にて施工し、お引渡しの後も手厚いアフターサービス体制でサポートします。
長期にわたって安全かつ快適に居住できる性能を備えていると国が認定した住宅。税制面やローンの金利面でもメリットがあります。
ZEH水準の「断熱等性能等級5」および「一次エネルギー消費量等級6」を同時に満たしています。季節に関わらず、室温の安定を保ち、快適な室内環境を実現します。
スケルトンとインフィルを明確に区別し、構造躯体を傷めることなく、設備・仕上げ材が容易に交換できる工夫を組み込んでいます。
壁内の水分を透湿防水シートから通気層を通して外部に放出させる「外壁通気工法」を採用し、建物の耐久性を高めています。
構造躯体に影響を及ぼさずに、給排水管等の点検補修ができる工夫をさまざまに取り入れ、建てた後の維持管理がしやすい設計になっています。
独自の構造50年保証、安心の地盤保証20年、さらに保存している定期点検やメンテナンスの記録を住宅履歴書としてお渡しすることができます。
ゼロホームは2012年より全ての新築住宅の建築に国産材を使用。
ゼロホームアプリから、お引渡し後のメンテナンス依頼やお困りごとのご相談が可能!また、アフターサービスについては、オーナー様用webサイトをご覧ください。
| 取引形態 | 売主 | 販売戸数/総戸数 | 1戸/1戸 |
|---|---|---|---|
| 敷地面積 | 公簿92.72㎡ | 建物面積 | 約86.11㎡ |
| 間取り | 3LDK | 駐車場 | 有(2台可能) |
| 建物構造 | 木造ガルバリウム鋼板ぶき 地上2階 | 建築年月 | 2025年12月完成予定 |
| 接道状況 | 北 幅員 約5.60m 公道に約5.67m接面 | ||
| 私道負担 | - | ||
| 地目 | 宅地 | 用途地域 | 第2種低層住居専用地域 |
| 建ぺい率 | 60% | 容積率 | 150% |
| 他の法令上の制限 | 第2種高度地区 | 設備 | 飲用水:水道(公営) ガス:都市ガス 汚水:公共下水 雑排水:公共下水 雨水:公共下水 |
| 引渡 | 2025年12月下旬 | 現況 | 未完成 |
| 建築確認番号 | 確認サービス第KS125-6120-51437号 | Mapコード | 1692812*63 |
| 学区 | 稲野小学校、西中学校 | ||
| 備考 | ・法22条指定区域・景観計画区域・屋外広告物禁止地域(一部例外有) 表題登記関連費用:110,000円(税込)別途要 長期優良住宅関連費用:110,000円(税込)別途要 ・造付バルコニー面積:約4.96㎡ |
||
情報提供日:2026/01/29(毎日情報更新)
取引条件の有効期限:2026/02/28
簡単ローンシミュレーション
ご検討中の「借入金額」「借入期間」「金利」で自由にシミュレーションできます!
借入金額 万円 借入期間 年 金利 % 毎月のお支払い額 円
※住宅ローン金利については各種金融機関のサイトなどでご確認ください。
※ボーナス払いなしの計算となります。また、お客様のご条件により金利の優遇幅が変動する場合があります。詳細はお気軽にご相談ください。
簡単ローンシミュレーション
ご検討中の「借入金額」「借入期間」「金利」で自由に
シミュレーションできます!
借入金額 万円
借入期間 年 金利 %
毎月のお支払い額 円
※住宅ローン金利については各種金融機関のサイトなどでご確認ください。
※ボーナス払いなしの計算となります。また、お客様のご条件により金利の優遇幅が変動する場合があります。詳細はお気軽にご相談ください。