0120-848-046
〒530-0003
大阪市北区堂島2丁目3番5号 JPR堂島ウエスト4F
営業時間:10:00~18:00 定休日:火・水曜日
/ 大阪の物件詳細情報 /PROPERTY
02/01(日)10:00~17:00オープンハウス開催
OPEN HOUSE
完成済
年度内入居可
プレゼント対象
6,980万円(税込)

豊中市長興寺南三丁目189番14
(住居表示: 3丁目9-1)

阪急宝塚線曽根駅まで徒歩14分
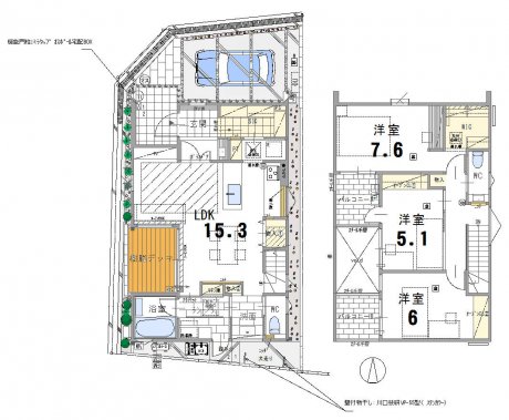
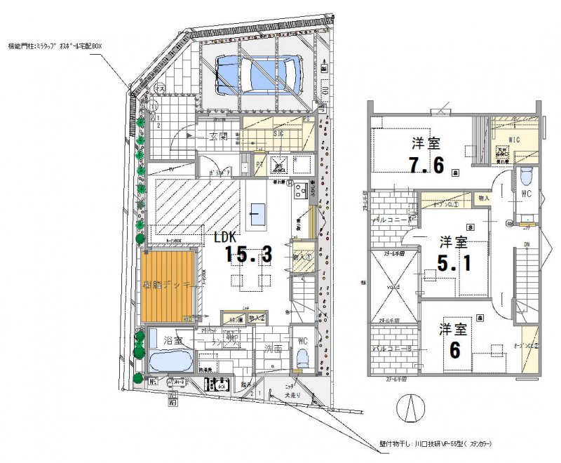
住まいの魅力とおすすめポイント!
◇三角屋根のデザインハウス
◇折り上げ天井と間接照明で空間の変化を愉しむリビングスペース
◇LDKに光と風を取り入れる中庭のデッキスペースは、おうちカフェを愉しむ空間に
◇靴やコート、ホビー用品、防災グッズも収納できる大容量のシューズインクローゼット
◇買い物の荷物をすぐ片付ける事ができる土間繋ぎのパントリーは家電や食品ストックを収納
◇1階デッキスペースに光をもたらす外部吹抜け
◇ちょっとしたプライベート空間なバルコニーは布団などを干すスペースとしても活用
◇ワークスペースも兼ねる書斎コーナーがある主寝室
◇洗面スペースとしても使える手洗い器がある2階トイレ
見た目の美しさだけでなく、居心地の良さと機能性を兼ね備えた、理想的な空間です。
ぜひ一度、実際にご覧いただき、その魅力をご体感ください。
OPEN HOUSE
完成済
年度内入居可
プレゼント対象
6,980万円(税込)

豊中市長興寺南三丁目189番14

阪急宝塚線曽根駅まで徒歩14分
住まいの魅力とおすすめポイント!
◇三角屋根のデザインハウス
◇折り上げ天井と間接照明で空間の変化を愉しむリビングスペース
◇LDKに光と風を取り入れる中庭のデッキスペースは、おうちカフェを愉しむ空間に
◇靴やコート、ホビー用品、防災グッズも収納できる大容量のシューズインクローゼット
◇買い物の荷物をすぐ片付ける事ができる土間繋ぎのパントリーは家電や食品ストックを収納
◇1階デッキスペースに光をもたらす外部吹抜け
◇ちょっとしたプライベート空間なバルコニーは布団などを干すスペースとしても活用
◇ワークスペースも兼ねる書斎コーナーがある主寝室
◇洗面スペースとしても使える手洗い器がある2階トイレ
見た目の美しさだけでなく、居心地の良さと機能性を兼ね備えた、理想的な空間です。
ぜひ一度、実際にご覧いただき、その魅力をご体感ください。
※間取り図・パース・写真中に車や家具を掲載の場合は、配置例を示したもので実際に設置されているわけではありません。特にコメントがない場合は家具や車などは販売価格に含まれません。
※掲載のモデルハウス画像は、完成建物の画像にCGで家具を合成配置したものです。実際にはモデルセッティングはございませんので、ご了承ください。
※掲載のモデルハウス画像は、完成建物の画像にCGで家具を合成配置したものです。実際にはモデルセッティングはございませんので、ご了承ください。
デザイン性があふれるリビングは家具選びも楽しくなりますね!
食品や食器などを収納できるパントリーと階段。
ご家族の様子を見ながら、料理ができます!
キッチンの奥にさらに収納スペースが!普段はあまり使わない調理器具をしまうなど、使い方様々!
高級感あふれる玄関で毎日お出迎えします。
洗礼されたデザインのホテルライクな手洗い場。
玄関奥にはシューズクローゼットもございます。
日光を取り入れやすいのでお部屋も開放的に。
リビングから出入りできることで、開放感や利便性がぐっと高まります!
スターバックス服部緑地店まで850m 徒歩11分
服部緑地まで900m 徒歩12分
服部緑地まで900m 徒歩12分
豊中市立緑地小学校まで557m 徒歩7分
第四中学校まで800m 徒歩10分
私立履正社中学校まで759m 徒歩10分
スーパーマーケットKOHYO阪急曽根店まで1000m 徒歩13分
三井住友銀行阪急曽根支店まで909m 徒歩12分
豊中長興寺南郵便局まで464m 徒歩6分
社会医療法人北斗会さわ病院まで523m 徒歩7分
ココカラファイン豊中城山店まで615m 徒歩8分
ファミリーマート豊中長興寺店まで237m 徒歩3分
長興寺南公園まで250m 徒歩4分
ピザ豊中店まで600m 徒歩8分
家じゅう“潤いナノバブル水”で暮らしを豊かに。水中の細かな気泡で肌や髪を潤し、料理、お風呂、洗濯、掃除など、家庭内で水を使用するあらゆるシーンで役立ちます。
<Beauty Aqua4つの特徴> ①保温 ②保湿 ③洗浄 ④時短 ”潤いナノバブル水”で豊かな暮らしを始めませんか?
【保湿・保温】お風呂・シャワーでスッキリ奇麗に 【洗浄】洗濯物がサッパリと洗い上がる 【時短】清潔な水回りで、家事ストレスが軽減
手元から足元までがすべてスライド式で収納力抜群のシステムキッチン。3口コンロ(無水両面焼きグリル)・食器洗い乾燥機・オールインワン浄水栓付きです。※物件によりカラーや設置イメージが異なる場合があります。
ラクな姿勢で使いやすいスライド式「食器洗い乾燥機」が標準装備。後片付けの時間が短縮でき、シンクまわりもすっきり片付きます。
お湯が冷めにくい、浴槽保温材と保温組フタの‟ダブル保温”構造。くるりんポイ排水口など毎日のお手入れもラクラク。ガス温水浴室暖房乾燥機付です。※物件によりカラーや設置イメージが異なる場合があります。
機能性に優れた三面鏡(長寿命・省電力のスリムLED付)と、豊富な収納キャビネットがついたスタイリッシュな洗面化粧台です。※物件によりカラーや設置イメージが異なる場合があります。
洗面化粧台下部は、奥のものまで取り出しやすい引き出し式です。
落ちにくい汚物汚れも、水を流すだけツルンっと落とせる新素材”アクアセラミック”で毎日のお手入れ簡単!※物件によりカラーや設置イメージが異なる場合があります。
| 取引形態 | 売主 | 販売戸数/総戸数 | 1戸/1戸 |
|---|---|---|---|
| 敷地面積 | 公簿96.40㎡ | 建物面積 | 約93.75㎡ |
| 間取り | 3LDK | 駐車場 | 有 |
| 建物構造 | 木造ガルバリウム鋼板ぶき 地上2階 | 築年月 | 2025年9月 |
| 接道状況 |
北 幅員 約4.15m ~ 約4.17m公道に約5.24m接面 公道に約3.00m接面 西 幅員 約4.26m ~ 約4.28m公道に約10.55m接面 |
||
| 私道負担 | - | ||
| 地目 | 宅地 | 用途地域 | 第1種中高層住居専用地域 |
| 建ぺい率 | 70% | 容積率 | 200% |
| 他の法令上の制限 | 第2種高度地区 | 設備 | 飲用水:水道(公営) ガス:都市ガス 汚水:公共下水 雑排水:公共下水 雨水:公共下水 |
| 引渡 | 相談 | 現況 | 完成済 |
| 建築確認番号 | 確認サービス第KS125-6120-50521号 | Mapコード | 1672492*72 |
| 学区 | 緑地小学校、第四中学校 | ||
| 備考 | ・表題登記関連費用:110,000円(税込)別途要 ・長期優良住宅関連費用:110,000円(税込)別途要 ・造付バルコニー面積:A約3.78㎡/B約3.24㎡ ・外部吹抜:4.86㎡ ・宅地造成等規制区域 ・法22条指定区域 ・隅切0.55㎡ |
||
情報提供日:2026/01/28(毎日情報更新)
取引条件の有効期限:2026/02/27
簡単ローンシミュレーション
ご検討中の「借入金額」「借入期間」「金利」で自由にシミュレーションできます!
借入金額 万円 借入期間 年 金利 % 毎月のお支払い額 円
※住宅ローン金利については各種金融機関のサイトなどでご確認ください。
※ボーナス払いなしの計算となります。また、お客様のご条件により金利の優遇幅が変動する場合があります。詳細はお気軽にご相談ください。
簡単ローンシミュレーション
ご検討中の「借入金額」「借入期間」「金利」で自由に
シミュレーションできます!
借入金額 万円
借入期間 年 金利 %
毎月のお支払い額 円
※住宅ローン金利については各種金融機関のサイトなどでご確認ください。
※ボーナス払いなしの計算となります。また、お客様のご条件により金利の優遇幅が変動する場合があります。詳細はお気軽にご相談ください。