0120-848-046
〒530-0003
大阪市北区堂島2丁目3番5号 JPR堂島ウエスト4F
営業時間:10:00~18:00 定休日:火・水曜日
/ 大阪の物件詳細情報 /PROPERTY
完成済
年度内入居可
PRICE DOWN
プレゼント対象
4,480万円(税込)

守口市八雲東町二丁目102番6
(住居表示: 二丁目37-4)

大阪メトロ谷町線大日駅まで徒歩10分
都市生活の喜びを余すことなく享受できる贅沢な立地で叶える理想のくらし
■洗練されたデザインと実用性を両立した住まい
– 家族みんながくつろげるリビング、生活感を感じさせない統一されたスマートなデザイン。
カジラク動線や充実した収納も、快適な生活をサポート。
■大日駅まで徒歩10分―大阪・梅田や新大阪へのダイレクトアクセス
■子育てに優しい街・守口市は、幼児教育・保育料の無償化など子育て世帯に嬉しい制度が充実
■「三井アウトレットパーク」とグルメ、シネマなどのアミューズメント施設も入る「三井ショッピングパーク ららぽーと」が一体となる複合商業施設や「コストコ」まで車で10分以内の立地
完成済
年度内入居可
PRICE DOWN
プレゼント対象
4,480万円(税込)

守口市八雲東町二丁目102番6

大阪メトロ谷町線大日駅まで徒歩10分
都市生活の喜びを余すことなく享受できる贅沢な立地で叶える理想のくらし
■洗練されたデザインと実用性を両立した住まい
– 家族みんながくつろげるリビング、生活感を感じさせない統一されたスマートなデザイン。
カジラク動線や充実した収納も、快適な生活をサポート。
■大日駅まで徒歩10分―大阪・梅田や新大阪へのダイレクトアクセス
■子育てに優しい街・守口市は、幼児教育・保育料の無償化など子育て世帯に嬉しい制度が充実
■「三井アウトレットパーク」とグルメ、シネマなどのアミューズメント施設も入る「三井ショッピングパーク ららぽーと」が一体となる複合商業施設や「コストコ」まで車で10分以内の立地
※間取り図・パース・写真中に車や家具を掲載の場合は、配置例を示したもので実際に設置されているわけではありません。特にコメントがない場合は家具や車などは販売価格に含まれません。
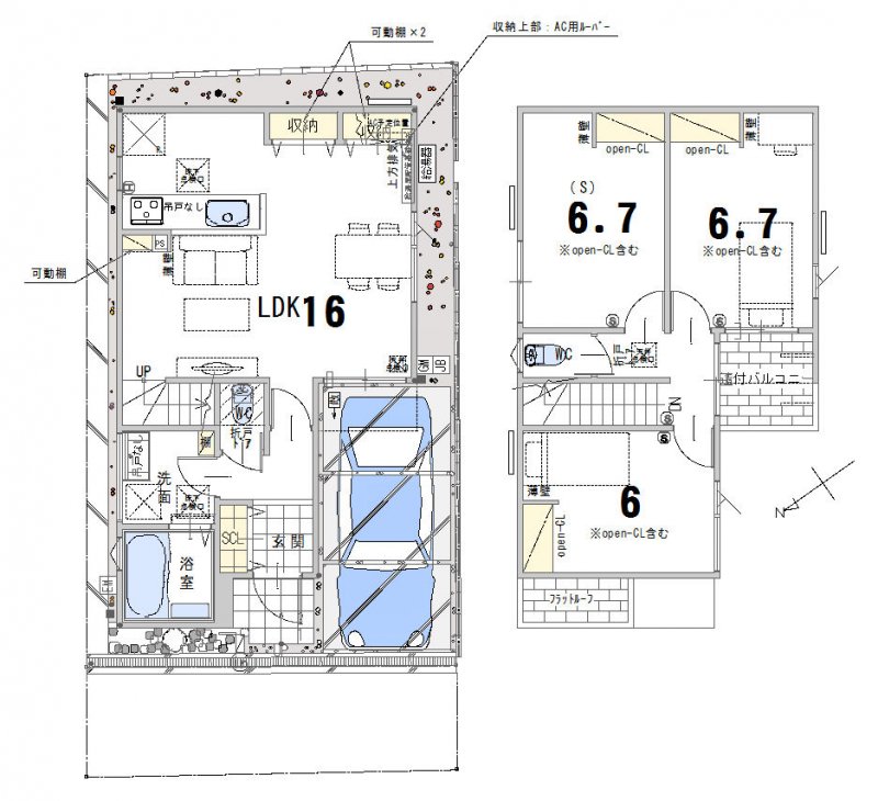
約16帖のLDKは、家族が自然と集まりやすいリビング設計。例えば、お好みのダイニングテーブル、TVボード&ソファ、南西の角にはグリーンやカウンターを配置すれば、食事やくつろぎ、リビング学習にぴったりです。
約16帖のLDKは、家族が自然と集まりやすいリビング設計。例えば、お好みのダイニングテーブル、TVボード&ソファ、南西の角にはグリーンやカウンターを配置すれば、食事やくつろぎ、リビング学習にぴったりです。
家族との会話を楽しめる対面キッチンは、キッチンにいながらにして、家族の様子を見るのがますます楽しく、作業もはかどります。
家族との会話を楽しめる対面キッチンは、キッチンにいながら、家族を見ることができ、作業もはかどります。 マットなコンクリート調のキッチンは、スタイリッシュなご家族にぴったり。
食料品や調理家電などキッチン周りのものを収納できるパントリー(可動収納)がキッチンをすっきり保ち広々と使えます。さらに収納上部のエアコンルーバーは、エアコンの機能性そのまま、生活感を感じさせません。
2階 南西 6.7帖 バルコニーに面したお部屋!毎日の換気もバッチリ♪
2階 6帖 クローゼット完備。窓があり、明るいお部屋です。
オープンクローゼットは「見せる収納」でおしゃれなインテリアに。また換気が良いため湿気やカビがこもりにくく、扉の開閉が不要で、毎日のコーディネートや片付けがスムーズです。(写真:北西洋室6.7帖)
機能性に優れた三面鏡と、豊富な収納キャビネットがついたスタイリッシュな洗面台(LIXIL)に、嬉しい壁面可動収納付き。プライバシーを守りつつ、十分な採光のある高い窓が洗面所を明るく保ちます。
キレイサーモフロアで冬でも足元が冷たくなりにくく、まる洗いカウンターは壁から外して丸ごと洗えるため掃除も簡単。快適性と清掃性、デザイン性を兼ね備えたバスルーム(LIXIL)です。
ブラックのアクセントクロスが効いたスタイリッシュなお手洗い。フチレス形状で汚れがたまりにくく、水アカや汚れが付きにくい、清掃性・快適性・デザイン性に優れた一体型シャワートイレ(LIXIL)です。(写真1階)
ブラックのアクセントクロスが効いたスタイリッシュなお手洗い。フチレス形状で汚れがたまりにくく、水アカや汚れが付きにくい、清掃性・快適性・デザイン性に優れた一体型シャワートイレ(LIXIL)です。(写真2階)
2階のバルコニーはプライベート性が高く、くつろぎにもお洗濯干しにも適します。また暗くなりがちな階段や2階廊下に、窓を通して陽の光を届けることで、明るく開放的な空間にしています。
家族の靴がたっぷり入るシューズクローク。可動棚のため高さ調節ができ、シューズ以外のレイングッズやアウトドア用品なども収納可能です。
長期にわたって安全かつ快適に居住できる性能を備えていると国が認定した住宅。税制面やローンの金利面でもメリットがあります。
長期優良住宅の断熱性能等級は5。地球にも家計にもやさしいお家です。
ゼロホームアプリから、お引渡し後のメンテナンス依頼やお困りごとのご相談が可能!また、アフターサービスについては、オーナー様用webサイトをご覧ください。
家じゅう“潤いナノバブル水”で暮らしを豊かに。水中の細かな気泡で肌や髪を潤し、料理、お風呂、洗濯、掃除など、家庭内で水を使用するあらゆるシーンで役立ちます。
<Beauty Aqua4つの特徴> ①保温 ②保湿 ③洗浄 ④時短 ”潤いナノバブル水”で豊かな暮らしを始めませんか?
【保湿・保温】お風呂・シャワーでスッキリ奇麗に 【洗浄】洗濯物がサッパリと洗い上がる 【時短】清潔な水回りで、家事ストレスが軽減
手元から足元までがすべてスライド式で収納力抜群のシステムキッチン。3口コンロ(無水両面焼きグリル)・食器洗い乾燥機・オールインワン浄水栓付きです。※物件によりカラーや設置イメージが異なる場合があります。
ラクな姿勢で使いやすいスライド式「食器洗い乾燥機」が標準装備。後片付けの時間が短縮でき、シンクまわりもすっきり片付きます。
お湯が冷めにくい、浴槽保温材と保温組フタの‟ダブル保温”構造。くるりんポイ排水口など毎日のお手入れもラクラク。ガス温水浴室暖房乾燥機付です。※物件によりカラーや設置イメージが異なる場合があります。
機能性に優れた三面鏡(長寿命・省電力のスリムLED付)と、豊富な収納キャビネットがついたスタイリッシュな洗面化粧台です。※物件によりカラーや設置イメージが異なる場合があります。
洗面化粧台下部は、奥のものまで取り出しやすい引き出し式です。
落ちにくい汚物汚れも、水を流すだけツルンっと落とせる新素材”アクアセラミック”で毎日のお手入れ簡単!※物件によりカラーや設置イメージが異なる場合があります。
| 取引形態 | 売主 | 販売戸数/総戸数 | 1戸/1戸 |
|---|---|---|---|
| 敷地面積 | 公簿89.84㎡ | 建物面積 | 約81.36㎡ |
| 間取り | 2LDK+S | 駐車場 | 有 |
| 建物構造 | 木造ガルバリウム鋼板ぶき 地上2階 | 築年月 | 2025年4月 |
| 接道状況 | 北西 幅員 約5.00m 私道に約6.84m接面 | ||
| 私道負担 | 含む約14.43㎡ | ||
| 地目 | 宅地 | 用途地域 | 第1種住居地域 |
| 建ぺい率 | 70% | 容積率 | 200% |
| 他の法令上の制限 | 準防火地域 | 設備 | 飲用水:水道(公営) ガス:都市ガス 汚水:公共下水 雑排水:公共下水 雨水:公共下水 |
| 引渡 | 即時 | 現況 | 完成済 |
| 建築確認番号 | 第トラスト24-1860号 | Mapコード | 1564861*66 |
| 学区 | 八雲東小学校、第一中学校 | ||
| 備考 | ・表題登記関連費用:110,000円(税込)別途要 ・長期優良住宅関連費用:110,000円(税込)別途要 ・造付バルコニー面積:約3.31㎡ ・納戸申請有 ・宅地造成工事規制区域 ・大日・八雲東町地区防災街区整備地区計画 |
||
情報提供日:2026/01/28(毎日情報更新)
取引条件の有効期限:2026/02/27
簡単ローンシミュレーション
ご検討中の「借入金額」「借入期間」「金利」で自由にシミュレーションできます!
借入金額 万円 借入期間 年 金利 % 毎月のお支払い額 円
※住宅ローン金利については各種金融機関のサイトなどでご確認ください。
※ボーナス払いなしの計算となります。また、お客様のご条件により金利の優遇幅が変動する場合があります。詳細はお気軽にご相談ください。
簡単ローンシミュレーション
ご検討中の「借入金額」「借入期間」「金利」で自由に
シミュレーションできます!
借入金額 万円
借入期間 年 金利 %
毎月のお支払い額 円
※住宅ローン金利については各種金融機関のサイトなどでご確認ください。
※ボーナス払いなしの計算となります。また、お客様のご条件により金利の優遇幅が変動する場合があります。詳細はお気軽にご相談ください。