0120-031-046
〒615-0016
京都市右京区西院西淳和院町52-11
営業時間:10:00~18:00 定休日:火・水曜日
/ 京都の物件詳細情報 /PROPERTY
12/6(土)・12/7(日)13:00~17:00オープンハウス開催
OPEN HOUSE
NEW
6,980万円(税込)

京都市西京区桂坤町50番11

阪急京都線桂駅まで徒歩12分
市バス月見ヶ丘バス停まで徒歩3分
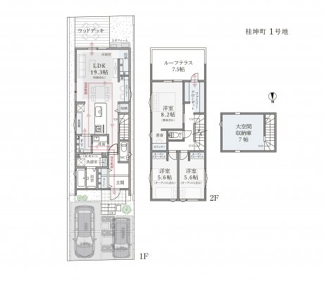
”スッキリ片付く家事楽ハウス”
◎ぐるぐる回れる回遊動線で家事ラク!
家事に必要なスペースがコンパクトにまとまって動きやすい!
洗濯も料理もスムーズに。
◎大容量ファミリークローゼット
ルーフテラスのすぐ横にあり、干した洗濯物はすぐしまえる♪
◎買い物後の帰宅動線もスムーズな設計
◎「室内物干」+「カウンター」
ちょっとした仮干しスペースに、アイロンがけもできるカウンター
◇ご不明点や詳細情報につきましては、お気軽にお問い合わせくださいませ。
OPEN HOUSE
NEW
6,980万円(税込)

京都市西京区桂坤町50番11

阪急京都線桂駅まで徒歩12分
市バス月見ヶ丘バス停まで徒歩3分
”スッキリ片付く家事楽ハウス”
◎ぐるぐる回れる回遊動線で家事ラク!
家事に必要なスペースがコンパクトにまとまって動きやすい!
洗濯も料理もスムーズに。
◎大容量ファミリークローゼット
ルーフテラスのすぐ横にあり、干した洗濯物はすぐしまえる♪
◎買い物後の帰宅動線もスムーズな設計
◎「室内物干」+「カウンター」
ちょっとした仮干しスペースに、アイロンがけもできるカウンター
◇ご不明点や詳細情報につきましては、お気軽にお問い合わせくださいませ。
※間取り図・パース・写真中に車や家具を掲載の場合は、配置例を示したもので実際に設置されているわけではありません。特にコメントがない場合は家具や車などは販売価格に含まれません。
長期にわたって安全かつ快適に居住できる性能を備えていると国が認定した住宅。税制面やローンの金利面でもメリットがあります。
長期優良住宅の断熱性能等級は5。地球にも家計にもやさしいお家です。
ゼロホームアプリから、お引渡し後のメンテナンス依頼やお困りごとのご相談が可能!また、アフターサービスについては、オーナー様用webサイトをご覧ください。
たっぷり乾かせる大容量の8㎏タイプを採用!
短時間乾燥だから、干す手間も取り込む手間もかかりません。
毎日使っても安心の低コスト。コインランドリーよりもおトク!
気になる衣類の悪臭を、ガスの温風で除去します。
新品のタオルのように、繊維を立ち上げふんわりの仕上がりに。
足元からやさしく暖める床暖房を標準装備。
キッチン:フロントオープン食洗器。大容量だから、お鍋も水筒も一気に洗える◎
カップボード:大型のカップボードで、食器だけでなく、家電や食品ストックまでたっぷり収納可能。リビングから見ても生活感がなく、いつもキレイな空間を保てます。
洗面化粧台:「大型洗面ボウル」と「てまなし排水口」で、毎日の使用と掃除のストレスを軽減!
浴室:床部分は汚れにくい特殊加工と形状でお掃除ラクラク!断熱層構造で、足裏の冷たさも感じにくい快適仕様です。
1階トイレ:水アカがこびりつかず、お掃除がラクラク。強力な水流が便器鉢内のすみずみまで回り、少ない水でもしっかり汚れを洗い流します。
2階トイレ:水アカがこびりつかず、お掃除がラクラク。強力な水流が便器鉢内のすみずみまで回り、少ない水でもしっかり汚れを洗い流します。
| 取引形態 | 売主 | 販売戸数/総戸数 | 10戸/16戸 |
|---|---|---|---|
| 敷地面積 | 公簿115.83㎡ | 建物面積 | 約99.36㎡ |
| 間取り | 3LDK | 駐車場 | 有 |
| 建物構造 | 木造 地上2階 | 建築年月 | 2026年3月完成予定 |
| 接道状況 | 北 幅員 約6.00m 公道に約5.65m接面 | ||
| 私道負担 | - | ||
| 地目 | 宅地 | 用途地域 | 第1種低層住居専用地域 |
| 建ぺい率 | 60% | 容積率 | 100% |
| 他の法令上の制限 | 準防火地域 10m高度地区 | 設備 | 飲用水:水道(公営) ガス:都市ガス 汚水:公共下水 |
| 引渡 | 2026年3月中旬 | 現況 | 未完成 |
| 建築確認番号 | 第2025確認建築京機構市00680号 | Mapコード | 7 518 260*50 |
| 学区 | 桂小学校、桂中学校 | ||
| 備考 | ルーフテラス:約12.42㎡ 大空間収納庫:約14.49㎡ 表題登記関連費用:110,000円(税込)、長期優良住宅関連費用:110,000円(税込) 別途要 ソラエネネクスト利用の為、大阪ガスとの電気契約必須 |
||
情報提供日:2025/12/05(毎日情報更新)
取引条件の有効期限:2026/01/04
簡単ローンシミュレーション
ご検討中の「借入金額」「借入期間」「金利」で自由にシミュレーションできます!
借入金額 万円 借入期間 年 金利 % 毎月のお支払い額 円
※住宅ローン金利については各種金融機関のサイトなどでご確認ください。
※ボーナス払いなしの計算となります。また、お客様のご条件により金利の優遇幅が変動する場合があります。詳細はお気軽にご相談ください。
簡単ローンシミュレーション
ご検討中の「借入金額」「借入期間」「金利」で自由に
シミュレーションできます!
借入金額 万円
借入期間 年 金利 %
毎月のお支払い額 円
※住宅ローン金利については各種金融機関のサイトなどでご確認ください。
※ボーナス払いなしの計算となります。また、お客様のご条件により金利の優遇幅が変動する場合があります。詳細はお気軽にご相談ください。