0120-848-046
〒530-0003
大阪市北区堂島2丁目3番5号 JPR堂島ウエスト4F
営業時間:10:00~18:00 定休日:火・水曜日
/ 大阪の物件詳細情報 /PROPERTY
完成済
年度内入居可
PRICE DOWN
プレゼント対象
3,380万円(税込)

高槻市深沢本町98番50
(住居表示: 深沢本町26-5)

高槻市バス深沢住宅南口バス停まで徒歩4分
-おすすめポイント
◇ZEH水準の評価取得。高機能住宅
◇土地面積25坪。駐車2台可
◇スーパーモリタ屋まで徒歩2分の利便性
-ロケーションの魅力
◇高槻市立南大冠小学校:徒歩3分
◇高槻市立冠中学校:徒歩14分
◇カインズ入店大型ショッピングセンター:徒歩8分
-住まいの魅力
◇耐震等級3取得。耐震力1.5倍
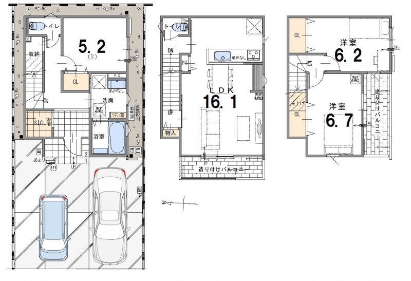
◇LDK16.1帖。開放感のある広さです
◇高断熱サッシYKKAPエピソードⅡ(アルゴンガス入り)を標準採用
◇外構費・設計費・上下水道引込費用・地盤調査費込みの価格です
-ゼロ・コーポレーションの魅力
◇品質主義の家づくり。デザインと性能に自信があります
完成済
年度内入居可
PRICE DOWN
プレゼント対象
3,380万円(税込)

高槻市深沢本町98番50

高槻市バス深沢住宅南口バス停まで徒歩4分
-おすすめポイント
◇ZEH水準の評価取得。高機能住宅
◇土地面積25坪。駐車2台可
◇スーパーモリタ屋まで徒歩2分の利便性
-ロケーションの魅力
◇高槻市立南大冠小学校:徒歩3分
◇高槻市立冠中学校:徒歩14分
◇カインズ入店大型ショッピングセンター:徒歩8分
-住まいの魅力
◇耐震等級3取得。耐震力1.5倍
◇LDK16.1帖。開放感のある広さです
◇高断熱サッシYKKAPエピソードⅡ(アルゴンガス入り)を標準採用
◇外構費・設計費・上下水道引込費用・地盤調査費込みの価格です
-ゼロ・コーポレーションの魅力
◇品質主義の家づくり。デザインと性能に自信があります
※間取り図・パース・写真中に車や家具を掲載の場合は、配置例を示したもので実際に設置されているわけではありません。特にコメントがない場合は家具や車などは販売価格に含まれません。
リビングはバルコニーに面していますので、明るく開放感のある印象です。※掲載写真の家具・インテリアはイメージ配置のためのものであり、お渡し時には付属しません。
対面式キッチンでご家族、ご友人との語らいも楽しめます。※掲載写真の家具・インテリアはイメージ配置のためのものであり、お渡し時には付属しません。
16.1帖の広々LDK。※掲載写真の家具・インテリアはイメージ配置のためのものであり、お渡し時には付属しません。
通風・採光に優れた明るいプライベート空間を演出します。
家族やご友人との会話も楽しめる広々リビングや、料理がはかどる3口コンロなど、使いやすい工夫がいっぱいのシステムキッチン。
洗練されたデザインと優れた使いやすさのキッチンは、毎日の家事も楽しくなります。
1階 5.2帖 洋室
1階5.2帖 収納付きの使いやすそうなお部屋です。子供部屋や書斎に。
3階 6.2帖 全居室についているクローゼットは衣類や小物をまとめて収納できるため、部屋に物が散らかりにくくなります。
3階 6.2帖 大切なプライベート空間。趣味に合わせて使って頂けるようシンプルに仕上げました。
3階6.7帖 バルコニーに面したお部屋!通風・採光ともに良好です。アクセントクロスがおしゃれ!
3階6.7帖 家族それぞれの収納スペースを設けやすいので、家族全員で整理整頓しやすくなります。
洗面スペースも広々していて、忙しい朝のご準備も快適です。
食洗器参考写真※設置時期によりイメージが異なる場合があります。
2階トイレ
1階トイレ。トイレも2か所と充実しており、ご家族で使い分けることもできます。
浴室は出入り口の段差をなくした(段差20mm以下)「バリアフリータイプ」で、浴槽出入りのための手すりを標準装備。
ゼロホームの100年住宅は、高品質を維持するための構造にて施工し、お引渡しの後も手厚いアフターサービス体制でサポートします。
スケルトンとインフィルを明確に区別し、構造躯体を傷めることなく、設備・仕上げ材が容易に交換できる工夫を組み込んでいます。
壁内の水分を透湿防水シートから通気層を通して外部に放出させる「外壁通気工法」を採用し、建物の耐久性を高めています。
構造躯体に影響を及ぼさずに、給排水管等の点検補修ができる工夫をさまざまに取り入れ、建てた後の維持管理がしやすい設計になっています。
独自の構造50年保証、安心の地盤保証20年、さらに保存している定期点検やメンテナンスの記録を住宅履歴書としてお渡しすることができます。
ゼロホームは2012年より全ての新築住宅の建築に国産材を使用。
手元から足元までがすべてスライド式で収納力抜群のシステムキッチン。3口コンロ(無水両面焼きグリル)・食器洗い乾燥機・オールインワン浄水栓付きです。※物件によりカラーや設置イメージが異なる場合があります。
ラクな姿勢で使いやすいスライド式「食器洗い乾燥機」が標準装備。後片付けの時間が短縮でき、シンクまわりもすっきり片付きます。
機能性に優れた三面鏡(長寿命・省電力のスリムLED付)と、豊富な収納キャビネットがついたスタイリッシュな洗面化粧台です。※物件によりカラーや設置イメージが異なる場合があります。
洗面化粧台下部は、奥のものまで取り出しやすい引き出し式です。
落ちにくい汚物汚れも、水を流すだけツルンっと落とせる新素材”アクアセラミック”で毎日のお手入れ簡単!※物件によりカラーや設置イメージが異なる場合があります。
毎日のお手入れがしやすい工夫と心地よい使用感を兼ね備えた、シンプルデザインのシステムバス。※物件によりカラーや設置イメージが異なる場合があります。
| 取引形態 | 売主 | 販売戸数/総戸数 | 1戸/1戸 |
|---|---|---|---|
| 敷地面積 | 公簿82.65㎡ | 建物面積 | 約93.57㎡ |
| 間取り | 2LDK+S | 駐車場 | 有 |
| 建物構造 | 木造ガルバリウム鋼板ぶき 地上3階 | 築年月 | 2024年10月 |
| 接道状況 | 西 幅員 約4.17m ~ 約4.19m公道に約6.37m接面 | ||
| 私道負担 | - | ||
| 地目 | 宅地 | 用途地域 | 第1種中高層住居専用地域 |
| 建ぺい率 | 70% | 容積率 | 200% |
| 他の法令上の制限 | 準防火地域 第2種高度地区 | 設備 | 飲用水:水道(公営) ガス:都市ガス 汚水:公共下水 雑排水:公共下水 雨水:公共下水 |
| 引渡 | 即時 | 現況 | 完成済 |
| 建築確認番号 | 確認サービス第KS124-6120-50302号 | Mapコード | 11841740*11 |
| 学区 | 南大冠小学校、冠中学校 | ||
| 備考 | ・表題登記関連費用:110,000円(税込)別途要 ・住宅省エネルギー性能証明書申請費用:110,000円(税込)別途要 ・フラット35S金利Aプランの適合証明書取得済 ・造付バルコニー面積:2階約4.50㎡/3階約5.58㎡ ・納戸申請有 ・ZEH Oriented |
||
情報提供日:2026/01/28(毎日情報更新)
取引条件の有効期限:2026/02/27
簡単ローンシミュレーション
ご検討中の「借入金額」「借入期間」「金利」で自由にシミュレーションできます!
借入金額 万円 借入期間 年 金利 % 毎月のお支払い額 円
※住宅ローン金利については各種金融機関のサイトなどでご確認ください。
※ボーナス払いなしの計算となります。また、お客様のご条件により金利の優遇幅が変動する場合があります。詳細はお気軽にご相談ください。
簡単ローンシミュレーション
ご検討中の「借入金額」「借入期間」「金利」で自由に
シミュレーションできます!
借入金額 万円
借入期間 年 金利 %
毎月のお支払い額 円
※住宅ローン金利については各種金融機関のサイトなどでご確認ください。
※ボーナス払いなしの計算となります。また、お客様のご条件により金利の優遇幅が変動する場合があります。詳細はお気軽にご相談ください。