0120-848-046
〒530-0003
大阪市北区堂島2丁目3番5号 JPR堂島ウエスト4F
営業時間:10:00~18:00 定休日:火・水曜日
/ 大阪の物件詳細情報 /PROPERTY
完成済
年度内入居可
PRICE DOWN
3,180万円(税込)

高槻市東和町247番16
(住居表示: 43-1)

高槻市バス深沢住宅バス停まで徒歩5分
-おすすめポイント
♢角地につき日当たり良好!
♢1階洋室に広々ウォークインクローゼット付き!
♢全居室6帖以上!
-ロケーションの魅力
♢高槻市冠小学校 徒歩10分
♢高槻市冠中学校 徒歩4分
♢周辺お買い物施設充実!(スーパーmandai、ドン・キホーテ、スーパーオートバックス、
ヤマダ電機などが徒歩15分程度)
-住まいの魅力
♢耐震等級3取得。耐震力1.5倍!
♢住宅ローン特別控除対象物件!
♢西側間口9.85mで楽々駐車可!
完成済
年度内入居可
PRICE DOWN
3,180万円(税込)

高槻市東和町247番16

高槻市バス深沢住宅バス停まで徒歩5分
-おすすめポイント
♢角地につき日当たり良好!
♢1階洋室に広々ウォークインクローゼット付き!
♢全居室6帖以上!
-ロケーションの魅力
♢高槻市冠小学校 徒歩10分
♢高槻市冠中学校 徒歩4分
♢周辺お買い物施設充実!(スーパーmandai、ドン・キホーテ、スーパーオートバックス、
ヤマダ電機などが徒歩15分程度)
-住まいの魅力
♢耐震等級3取得。耐震力1.5倍!
♢住宅ローン特別控除対象物件!
♢西側間口9.85mで楽々駐車可!
※間取り図・パース・写真中に車や家具を掲載の場合は、配置例を示したもので実際に設置されているわけではありません。特にコメントがない場合は家具や車などは販売価格に含まれません。
リビングイメージ ※掲載のモデルハウス画像は、完成建物の画像にCGで家具を合成配置したものです。実際にはモデルセッティングはございませんので、ご了承ください。
リビングイメージ ※掲載のモデルハウス画像は、完成建物の画像にCGで家具を合成配置したものです。実際にはモデルセッティングはございませんので、ご了承ください。
木の温もりを感じるデザインの対面式キッチン。 リビングを見渡しながら調理ができ、家族との会話も自然に広がります。
バルコニー直通なのでお部屋が明るく開放的な空間になります。
広々としたリビングでは家具選びも楽しみの一つになりますね。
手元から足元までがすべてスライド式で収納力抜群のシステムキッチン。3口コンロ・食器洗い乾燥機・オールインワン浄水栓付きです。
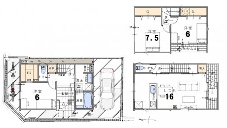
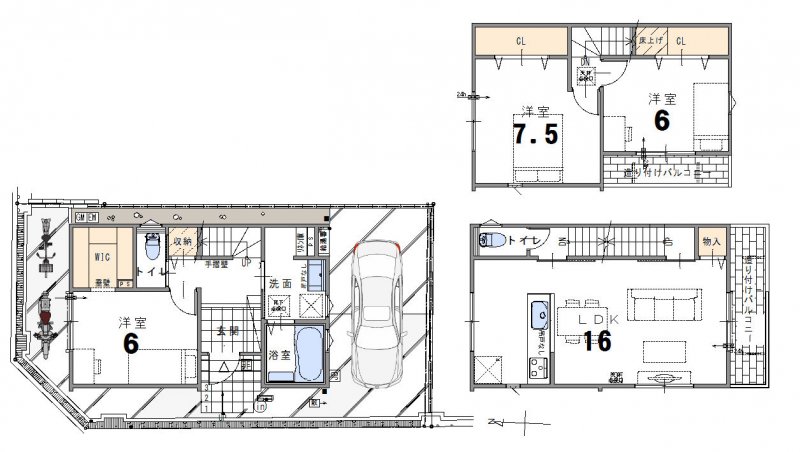
1階 広々ウォークインクローゼットは準備や片付けがスムーズ。衣類やアイテムを整然と収納でき、お部屋をすっきり保ち広々と使えます。
1階6畳洋室 玄関から入ってすぐ!趣味に合わせて使って頂けるよう収納に便利なWICを設置し、シンプルに仕上げました。
3階6帖洋室 バルコニーに面したお部屋なので、通風・採光ともに良好です。嬉しい収納スペース付き!
3階7.5帖洋室 寝室や子供部屋に。収納付きなので家具のレイアウトも楽しくなりそう♪
3階バルコニー 観葉植物を置いたり、ちょっとした休憩スペースとして活用することもできます。
洗面近くにリネン庫を設置。タオルや下着、パジャマなどをまとめて収納できるため、洗面所が散らかりにくくなります。
浴室は出入り口の段差をなくした(段差20mm以下)「バリアフリータイプ」
1階トイレ。トイレも2か所と充実しており、ご家族で使い分けることもできます。
洗面所やトイレなど収納スペースが少ない場所の近くに廊下収納を設けることで、洗剤やトイレットペーパーなどのストックを収納するのに便利です.
LDK物入 用頻度や家族のライフスタイルに合わせて、掃除道具、日用品のストック、書類、季節家電などを収納できます。
家族の靴がたっぷり入るシューズクローク。可動棚のため高さ調節ができ、シューズ以外のレイングッズやアウトドア用品なども収納可能です。
ゼロホームの100年住宅は、高品質を維持するための構造にて施工し、お引渡しの後も手厚いアフターサービス体制でサポートします。
スケルトンとインフィルを明確に区別し、構造躯体を傷めることなく、設備・仕上げ材が容易に交換できる工夫を組み込んでいます。
壁内の水分を透湿防水シートから通気層を通して外部に放出させる「外壁通気工法」を採用し、建物の耐久性を高めています。
構造躯体に影響を及ぼさずに、給排水管等の点検補修ができる工夫をさまざまに取り入れ、建てた後の維持管理がしやすい設計になっています。
独自の構造50年保証、安心の地盤保証20年、さらに保存している定期点検やメンテナンスの記録を住宅履歴書としてお渡しすることができます。
ゼロホームは2012年より全ての新築住宅の建築に国産材を使用。
| 取引形態 | 売主 | 販売戸数/総戸数 | 1戸/1戸 |
|---|---|---|---|
| 敷地面積 | 公簿73.34㎡ | 建物面積 | 約94.12㎡ |
| 間取り | 3LDK | 駐車場 | 有 |
| 建物構造 | 木造ガルバリウム鋼板ぶき 地上3階 | 築年月 | 2024年7月 |
| 接道状況 |
北 幅員 約6.00m 公道に約4.43m接面 西 幅員 約3.93m 公道に約9.85m接面 |
||
| 私道負担 | - | ||
| 地目 | 宅地 | 用途地域 | 第1種中高層住居専用地域 |
| 建ぺい率 | 80% | 容積率 | 200% |
| 他の法令上の制限 | 準防火地域 第2種高度地区 | 設備 | 飲用水:水道(公営) ガス:都市ガス 汚水:公共下水 雑排水:公共下水 雨水:公共下水 |
| 引渡 | 即時 | 現況 | 完成済 |
| 建築確認番号 | 確認サービス第KS124-6120-50126号 | Mapコード | 11871269*21 |
| 学区 | 冠小学校、冠中学校 | ||
| 備考 | ・表題登記関連費用:110,000円(税込)別途要 ・住宅省エネルギー性能証明書申請費用:110,000円(税込)別途要 ・フラット35S金利Aプランの適合証明書取得済 ・造付バルコニー面積:2階約5.00㎡/3階約3.31㎡ セットバック面積 約0.06㎡ |
||
情報提供日:2026/03/15(毎日情報更新)
取引条件の有効期限:2026/04/14
簡単ローンシミュレーション
ご検討中の「借入金額」「借入期間」「金利」で自由にシミュレーションできます!
借入金額 万円 借入期間 年 金利 % 毎月のお支払い額 円
※住宅ローン金利については各種金融機関のサイトなどでご確認ください。
※ボーナス払いなしの計算となります。また、お客様のご条件により金利の優遇幅が変動する場合があります。詳細はお気軽にご相談ください。
簡単ローンシミュレーション
ご検討中の「借入金額」「借入期間」「金利」で自由に
シミュレーションできます!
借入金額 万円
借入期間 年 金利 %
毎月のお支払い額 円
※住宅ローン金利については各種金融機関のサイトなどでご確認ください。
※ボーナス払いなしの計算となります。また、お客様のご条件により金利の優遇幅が変動する場合があります。詳細はお気軽にご相談ください。